Valutazione immobiliare indipendente, accurata e gratuita
Terreno agricolo in vendita a Casarza Ligure a 120.000 € (cod.64feb3a3)
Caasa non ha sufficienti informazioni per commentare il terreno agricolo in vendita a Casarza Ligure - 64feb3a3.
Analisi immobiliare
I dati in posseso di Caasa per quest'immobile sono insufficienti, inaffidabili o contraddittori per proporre un'analisi attendibile.
Mercato immobiliare a Casarza Ligure
Per quanto riguarda più in generale il comune di Casarza Ligure, sono presenti al momento meno di dieci annunci per
terreni agricoli in vendita (meno del 5% dell'intera provincia)
e il maggior numero di annunci per questa tipologia sono relativi alla zona di Bargone.
Vedi altre informazioni direttamente su
Mercato-Immobiliare.info
NOVITÀ Il risultato che vedi dipende dai dati che siamo riusciti ad estrarre dall'annuncio: ottieni una stima più accuranta di questo immobile, inserendo dati più precisi.
N.B. L'Opinione di Caasa® è un servizio sperimentale realizzato tramite tecniche di Intelligenza Artificiale, fornito senza alcuna garanzia di correttezza e completezza. Leggi il disclaimer o segnalaci un problema.
IMMAGINI
IN SINTESI
DESCRIZIONE
con terrazza con giardino con cantina con balcone con angolo cottura
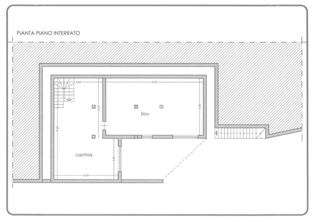
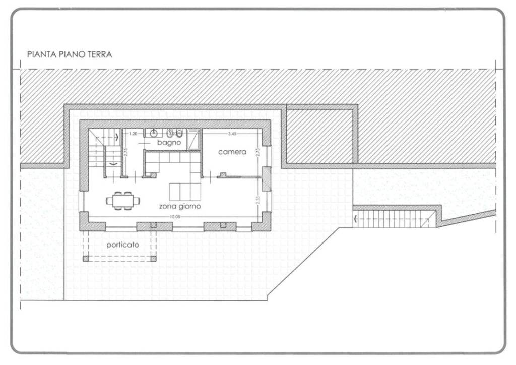
Casarza Ligure – Via Olivella Caminata In posizione tranquilla e soleggiata, a meno di 1 km dal centro di Casarza Ligure e da tutti i principali servizi, proponiamo in vendita un terreno edificabile con studio di fattibilità già approvato per la realizzazione di una villetta indipendente di circa 95 mq abitativi. Il progetto prevede un’abitazione moderna e funzionale, sviluppata su tre livelli, composta da ampio soggiorno con angolo cottura, tre camere da letto, bagno, balcone e terrazzo panoramico con affaccio sul verde circostante. Completano la proprietà un giardino privato, ideale per vivere all’aperto in totale privacy, un box doppio di circa 50 mq e una cantina di 48 mq. La posizione è perfetta per chi desidera vivere nella tranquillità della prima collina, senza rinunciare alla comodità dei servizi e alla vicinanza al mare di Sestri Levante, raggiungibile in pochi minuti. Soluzione ideale per chi sogna di costruire la propria casa indipendente, immersa nella natura ma a due passi dal paese

