N.B. Tutti le informazioni immobiliari sono fornite senza alcuna garanzia. Leggi il disclaimer.
Capannoni o locali commerciali, di recente costruzione in vendita a Viganò
MODIFICA QUESTA RICERCACapannone industriale in vendita a Viganò via Galileo Galilei, 3
capannone 380.000 €
Proponiamo in vendita capannone industriale di circa 500 mq, in ottime condizioni manutentive, ideale per attività artigianali, produttive o ad uso deposito. L’immobile è dotato di uffici luminosi e funzionali, oltre a spogliatoi e servizi igienici già predisposti, tutti in buono stato e pronti all’uso. […]
LEGGI ANCORA
Vendita Capannone Vigan
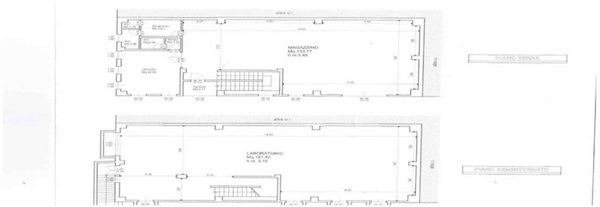
capannone 250.000 €
Disponiamo di porzione di capannone all'interno di un complesso industriale artigianale. Al piano terra si sviluppa il magazzino di 180 mq con ufficio, bagno e spogliatoio, al piano interrato il laboratorio di altrettanti 180 mq. I due livelli sono collegati da scala interna ed esterna. Struttura in ceme […]
LEGGI ANCORA
Capannone industriale in vendita a Viganò via della Vittoria, 51
capannone 1.100.000 €
COSA SAPERE DELL'IMMOBILE PER INFORMAZIONI ED APPUNTAMENTI CHIAMA 039 598 84 36 Il capannone proposto in vendita possiede una superficie di circa 1.000 metri quadrati e presenta circa 700 metri quadri di area esterna comune. DESCRIZIONE E PARTICOLARITA' Il capannone che misura circa 1000 metri quadrati h […]
LEGGI ANCORA
capannone in vendita a Viganò
capannone 800.000 €
Capannone Industriale Multifunzionale con Ampie Aree Uffici e Deposito In zona industriale, proponiamo in vendita un complesso immobiliare estremamente versatile, ideale per integrare laboratorio, uffici e stoccaggio. La proprietà si sviluppa su più livelli, offrendo spazi diversificati: Piano Terra ( […]
LEGGI ANCORA



