Valutazione immobiliare indipendente, accurata e gratuita
Casa indipendente in vendita a Latera a 149.000 € (cod.656360ed)
Caasa non ha sufficienti informazioni per commentare la casa indipendente in vendita a Latera - 656360ed.
Analisi immobiliare
I dati in posseso di Caasa per quest'immobile sono insufficienti, inaffidabili o contraddittori per proporre un'analisi attendibile.
Mercato immobiliare a Latera
Per quanto riguarda più in generale il comune di Latera, sono presenti al momento più di dieci annunci per
case indipendenti in vendita (meno dell'1% dell'intera provincia) .
NOVITÀ Il risultato che vedi dipende dai dati che siamo riusciti ad estrarre dall'annuncio: ottieni una stima più accuranta di questo immobile, inserendo dati più precisi.
N.B. L'Opinione di Caasa® è un servizio sperimentale realizzato tramite tecniche di Intelligenza Artificiale, fornito senza alcuna garanzia di correttezza e completezza. Leggi il disclaimer o segnalaci un problema.
IMMAGINI
IN SINTESI
DESCRIZIONE
di recente ristrutturazione di recente ristrutturazione con posto auto da ristrutturare con garage con cantina di recente costruzione con riscaldamento autonomo con climatizzazione
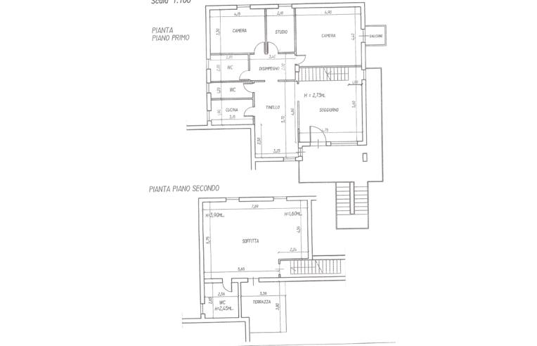
Da Privato. Privato vende villetta a schiera di 159 m² calpestabili a cui si accede da vialetto privato, esposta su 4 lati, con garage di 24 m² calpestabili posto a livello stradale, finestrato, gode dello scambio termico dell’adiacente locale caldaie che lo rende caldo in inverno e privo di umidità, può essere usato tranquillamente anche come magazzino vista l’importante metratura, dotato di acqua e luce. La casa è così composta: al primo piano è presente una spaziosa ed accogliente zona living con cucina Stosa a vista, e due locali adibiti a dispensa e lavanderia entrambi finestrati. Attraverso una doppia porta vetrata ad arco e un comodo disimpegno si accede alla zona notte composta da tre camere da letto e un bagno finestrato. Dalla zona living attraverso una comoda e caratteristica scala in legno si accede al secondo piano composto da un ampio locale mansardato con bagno finestrato e vasca, ripostiglio e terrazza panoramica di 13 m² aperta sul tetto. Completano la proprietà ampi spazi esterni al piano terra affacciati sulle verdi aree comuni e al primo piano terrazzo di 25 m² che circonda due lati dell’immobile munito di tenda da sole a bracci Tempotest. L’abitazione gode di una posizione panoramica privilegiata ed è molto luminosa; ristrutturata di recente si presenta in ottimo stato. L’immobile, costruito negli anni ’80, è dotato di mura esterne isolate termicamente ed acusticamente (doppio muro in forati con intercapedine nella quale sono presenti pannelli in lana di roccia da 5 cm), finestre con infissi in legno dotati di doppio vetro, riscaldamento autonomo a gas e radiatori muniti di valvole termostatiche, più pompe di calore caldo/freddo e 2 stufe MCZ alimentate a biomassa, una per piano, che consentono di scaldare la casa con meno di 2,00 euro al giorno. Questa soluzione rappresenta un’opportunità ideale per chi cerca ampi spazi abitativi in ottime condizioni, ambienti sani garantiti dall’eccellente coibentazione dell’immobile, affacciati sul verde in un contesto tranquillo, silenzioso e faci[…]


