Valutazione immobiliare indipendente, accurata e gratuita
Casa indipendente in vendita a Zagarolo a 32.625 € (cod.658fa4a7)
Caasa non ha sufficienti informazioni per commentare la casa indipendente in vendita a Zagarolo - 658fa4a7.
Analisi immobiliare
I dati in posseso di Caasa per quest'immobile sono insufficienti, inaffidabili o contraddittori per proporre un'analisi attendibile.
Mercato immobiliare a Zagarolo
Per quanto riguarda più in generale la città di Zagarolo, sono presenti al momento più di 300 annunci per
case indipendenti in vendita (meno dell'1% dell'intera provincia)
e il maggior numero di annunci per questa tipologia sono relativi alla zona di Valle Martella.
La dinamica dei prezzi in tutta la città mostra che negli ultimi 6 mesi, i prezzi per case indipendenti in vendita sono
in deciso aumento (+8,24%).
NOVITÀ Il risultato che vedi dipende dai dati che siamo riusciti ad estrarre dall'annuncio: ottieni una stima più accuranta di questo immobile, inserendo dati più precisi.
N.B. L'Opinione di Caasa® è un servizio sperimentale realizzato tramite tecniche di Intelligenza Artificiale, fornito senza alcuna garanzia di correttezza e completezza. Leggi il disclaimer o segnalaci un problema.
IMMAGINI
IN SINTESI
DESCRIZIONE
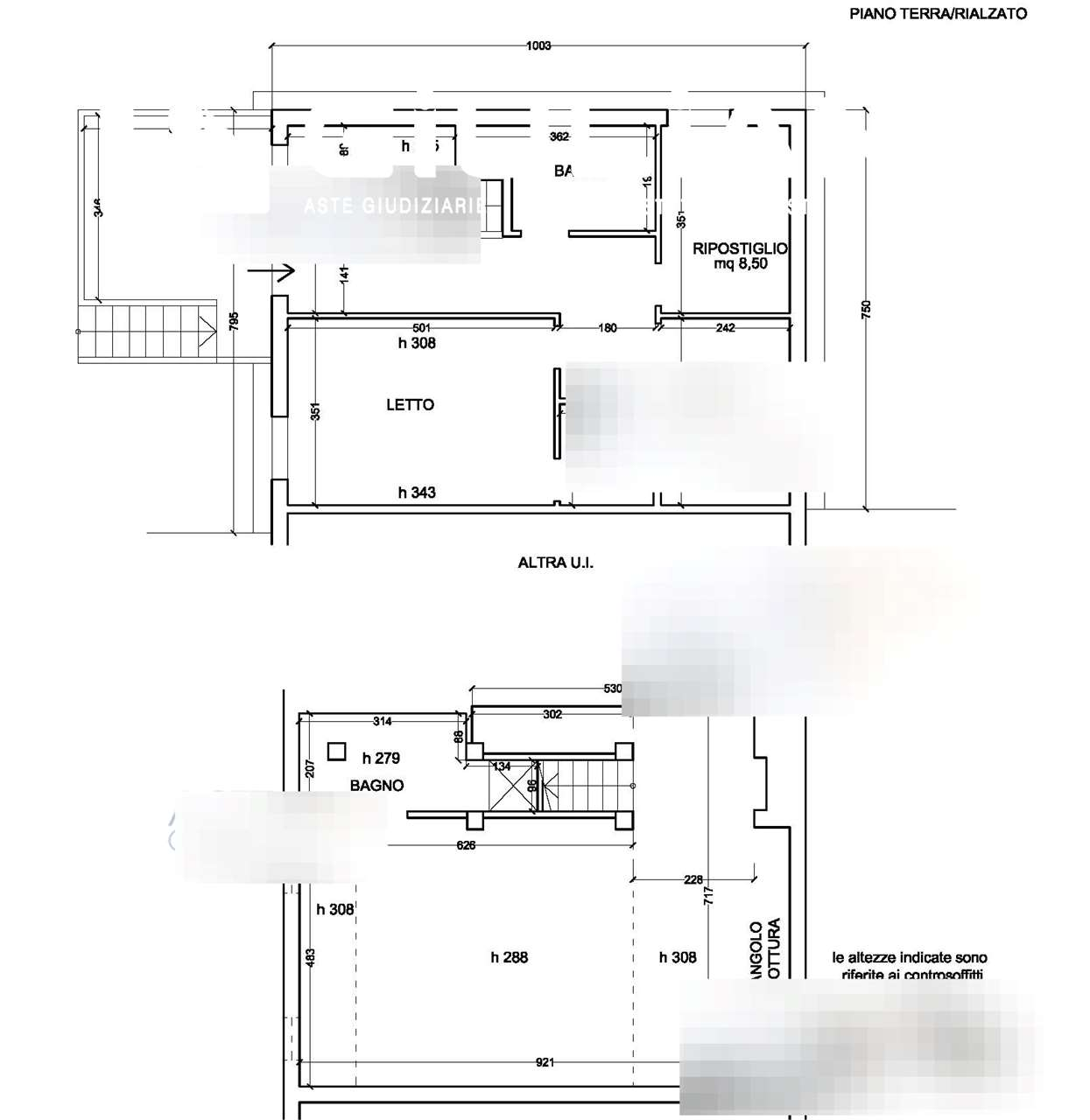
di nuova costruzione in asta giudiziaria con balcone di nuova costruzione
Zagarolo Via dei Paesi Nuovi, 18. Abitazione in villino bifamiliare nel Comune di Zagarolo (RM) in via Paesi Nuovi n.18. OFFERTA MINIMA: 32.625,00 EURO DATA DELL'ASTA: 15/04/2025 Casa è dove si trova il cuore. (Plinio il vecchio) Con lo STUDIO GIULIANI REAL ESTATE il sogno diventa realtà! Il nostro team di professionisti offre assistenza, consulenza legale e stragiudiziale per tutti gli immobili in asta giudiziaria e libero mercato. I servizi offerti al nostro cliente sono molteplici: - Ricerca dell'immobile con valutazione immobiliare - Valutazione preliminare tecnica e studio della perizia con geometra in sede; - Valutazione economica con broker finanziario in sede con possibilità di mutuo fino al 100% del prezzo di aggiudicazione; - Prenotazione visita degli immobili oggetto di interesse tramite il custode giudiziario; - Partecipazione in asta, il cliente verrà seguito fino alla consegna delle chiavi; - Effettuiamo inoltre pratiche di saldo e stralcio e di acquisto del credito dai maggiori istituti bancari. - La nostra parcella è dovuta solo in caso di aggiudicazione. - Il nostro team è a vostra completa disposizione per fornirvi tutte le informazioni e per fissare un appuntamento per una consulenza gratuita. I dati inerenti l'immobile ed il materiale fotografico contenuti nel presente annuncio verranno confermati in sede di consulenza. Puoi consultare tutti gli immobili disponibili in aggiornamento quotidiano sul nostro sito


