Valutazione immobiliare indipendente, accurata e gratuita
Terreno agricolo in vendita a Zagarolo in zona Valle Martella a 59.000 € (cod.64fdfb71)
Caasa non ha sufficienti informazioni per commentare il terreno agricolo a Zagarolo in zona Valle Martella - 64fdfb71.
Analisi immobiliare
I dati in posseso di Caasa per quest'immobile sono insufficienti, inaffidabili o contraddittori per proporre un'analisi attendibile.
Mercato immobiliare a Zagarolo
Per quanto riguarda più in generale la città di Zagarolo, sono presenti al momento più di cinquanta annunci per
terreni agricoli in vendita (meno del 5% dell'intera provincia)
e il maggior numero di annunci per questa tipologia sono relativi proprio alla zona di Valle Martella.
Vedi altre informazioni direttamente su
Mercato-Immobiliare.info
NOVITÀ Il risultato che vedi dipende dai dati che siamo riusciti ad estrarre dall'annuncio: ottieni una stima più accuranta di questo immobile, inserendo dati più precisi.
N.B. L'Opinione di Caasa® è un servizio sperimentale realizzato tramite tecniche di Intelligenza Artificiale, fornito senza alcuna garanzia di correttezza e completezza. Leggi il disclaimer o segnalaci un problema.
IMMAGINI
IN SINTESI
PROPOSTO DA:
aesse immobiliare
DESCRIZIONE
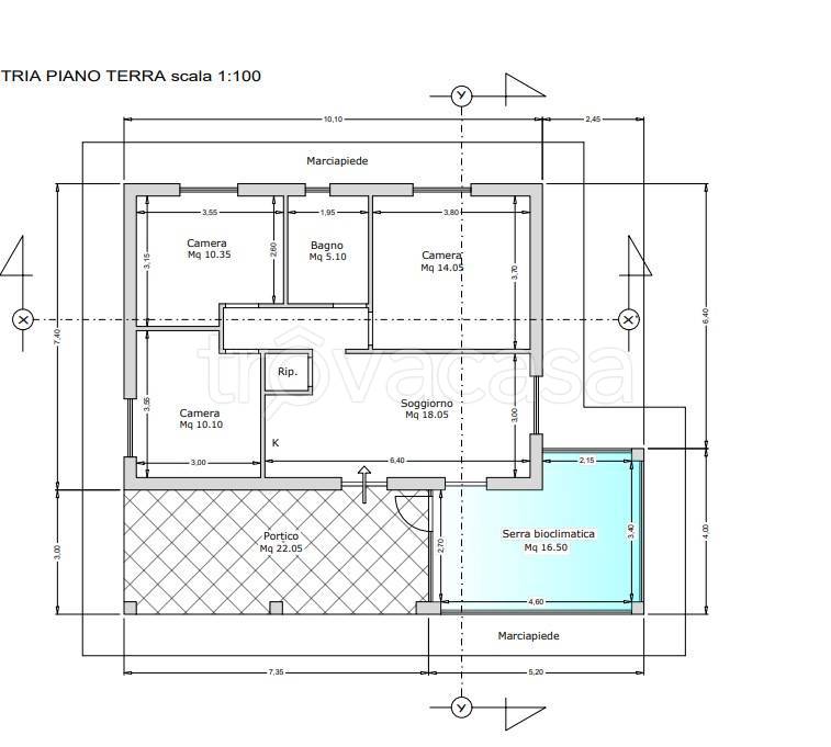
zagarolo valle martella via boito terreno edificabile lotto edificabile con progetto paesaggistico pagato da fare solo quello architettonico e pagamento degli oneri per il permesso di costruire il lotto sviluppa metri 1000 è completamente recintato la costruzione consentita è d metri 80, oltre 20 metri di portico, si può inoltre fare il piano interrato ed il piano sottotetto Per ulteriori info e dettagli contattare il 392 9264607

