Valutazione immobiliare indipendente, accurata e gratuita

Casa indipendente in vendita a Velletri a 106.500 € (cod.64eb3426)

Caasa non ha sufficienti informazioni per commentare la casa indipendente in vendita a Velletri - 64eb3426.

Analisi immobiliare
I dati in posseso di Caasa per quest'immobile sono insufficienti, inaffidabili o contraddittori per proporre un'analisi attendibile.
Mercato immobiliare a Velletri
Per quanto riguarda più in generale la città di Velletri, sono presenti al momento oltre 500 annunci per case indipendenti in vendita (meno del 5% dell'intera provincia) .

Possiamo inoltre considerare che in tutta la città negli ultimi 6 mesi, i prezzi per case indipendenti in vendita sono in deciso aumento (+8,39%).

NOVITÀ Il risultato che vedi dipende dai dati che siamo riusciti ad estrarre dall'annuncio: ottieni una stima più accuranta di questo immobile, inserendo dati più precisi.

N.B. L'Opinione di Caasa® è un servizio sperimentale realizzato tramite tecniche di Intelligenza Artificiale, fornito senza alcuna garanzia di correttezza e completezza. Leggi il disclaimer o segnalaci un problema.

IMMAGINI

IN SINTESI

Prezzo:
106.500 €
Superficie:
255 m²
Prezzo al m²:
417 €/m²
Piano:
terra
Bagni:
4
Classe energetica:
A
Città:
Velletri (RM)
Zona OMI:
E1 ( ESPANSIONE)
Indirizzo:
Pubblicato:
mer 6 agosto 2025

PROPOSTO DA:

STUDIO CANOVA immobili & crediti

DESCRIZIONE

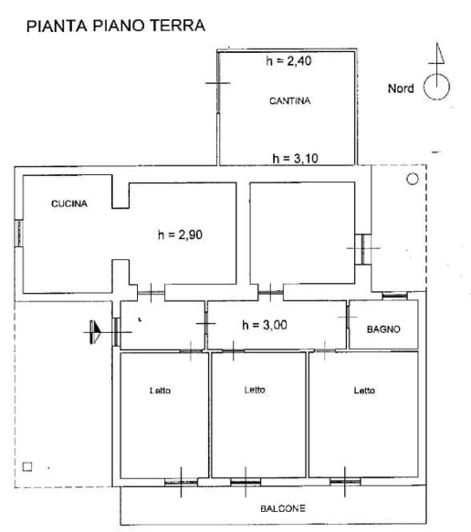
con terrazza con giardino con balcone con cantina in asta giudiziaria con angolo cottura

NUOVA PROPOSTA IMMOBILE DISPONIBILE Villetta a Velletri (RM), in Via Colle Caldara, disposta su due livelli con ampio giardino privato. Al piano terra, con doppio ingresso, si trovano soggiorno con angolo cottura, ulteriore soggiorno, cucina, tre camere da letto, due bagni, due ripostigli e due disimpegni. Il piano seminterrato è composto da angolo cottura, due bagni e due cantine. Completano la proprietà un balcone, due porticati e una corte esclusiva di circa 1.140 mq. L’immobile si trova in una zona verde e tranquilla. Per te la possibilità di avere un preventivo per il mutuo a condizioni vantaggiose con i nostri partner. Ulteriori dettagli, foto degli interni, planimetrie e altre info, se disponibili, saranno consultabili previo appuntamento nella sede di ROMA con MICHELE che inoltre ti informerà sulle possibilità di aggiudicarti questo affare. L'immobile pubblicato al momento è sottoposto a procedura di vendita legale; Gescom srl è specializzata nella ricerca e pianificazione di investimenti immobiliari secondo innovative strategie di acquisto. Contattaci subito potrai valutare assieme a un nostro tecnico canali distinti di acquisto dell’immobile, procedura di vendita diretta senza ricorrere all’asta (d.lgs. 149/2022) e ancora stralcio immobiliare. Le informazioni sopra riportate non sostituiscono l'avviso pubblicato dal Tribunale competente ne’ l'integrale gestione da parte del delegato designato. Il testo e le specifiche indicate nella presente pagina sono generate automaticamente attraverso l'utilizzo di software e/o da A. I., Gescom srl invita a verificare le formazioni e i materiali multimediali sui canali ufficiali, declinando fin d'ora ogni responsabilità su eventuali errori o incongruenze. Gescom Italia srl leader negli stralci immobiliari e nella consulenza tecnico legale, non si occupa di attività di intermediazione imm. di cui alla legge 39/89. Cl. energ. da verificare. Le foto pubblicate nel presente annuncio sono indicative e non esaustive della tipologia, qualità, consistenza e indicazi[…]

  • immobiliare.it
  • yescasa.it
  • annuncio-casa.it
  • bancadellecase.it
  • ioaffitto.it
  • trovacasa.net