Valutazione immobiliare indipendente, accurata e gratuita
Appartamento in vendita a Santa Marinella a 355.000 € (cod.64fa2eb6)
Caasa non ha sufficienti informazioni per commentare l'appartamento in vendita a Santa Marinella - 64fa2eb6.
Analisi immobiliare
I dati in posseso di Caasa per quest'immobile sono insufficienti, inaffidabili o contraddittori per proporre un'analisi attendibile.
Mercato immobiliare a Santa Marinella
Per quanto riguarda più in generale la città di Santa Marinella, sono presenti al momento oltre 500 annunci per
appartamenti in vendita (meno dell'1% dell'intera provincia)
e il maggior numero di annunci per questa tipologia sono relativi alla zona di Santa Severa.
Possiamo inoltre considerare che in tutta la città negli ultimi 6 mesi, i prezzi per appartamenti in vendita sono
in forte aumento (+15,26%).
NOVITÀ Il risultato che vedi dipende dai dati che siamo riusciti ad estrarre dall'annuncio: ottieni una stima più accuranta di questo immobile, inserendo dati più precisi.
N.B. L'Opinione di Caasa® è un servizio sperimentale realizzato tramite tecniche di Intelligenza Artificiale, fornito senza alcuna garanzia di correttezza e completezza. Leggi il disclaimer o segnalaci un problema.
IMMAGINI
IN SINTESI
PROPOSTO DA:
RockAgent S.p.A.
Via G. Paisiello, 55, Roma (RM)
Verificata da Caasa®
DESCRIZIONE
di nuova costruzione con terrazza con giardino con balcone con termocondizionamento di nuova costruzione con ascensore con cucina abitabile
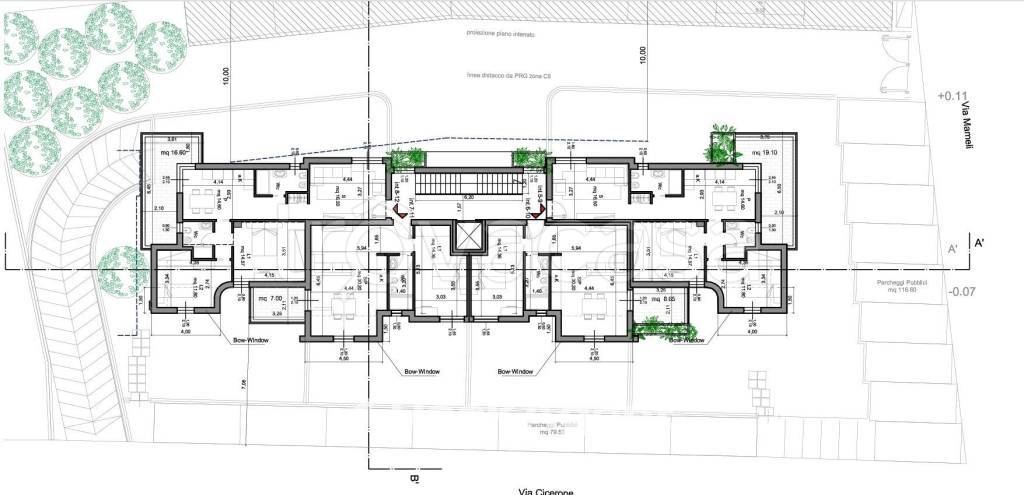
Situato nella tranquilla e affascinante cittadina di Santa Marinella, questo appartamento in vendita si trova in Via Cicerone, una zona residenziale che offre un ambiente sereno e ben collegato. La posizione è ideale per chi desidera vivere lontano dal caos cittadino, pur avendo a disposizione tutti i servizi essenziali nelle vicinanze. L'edificio, attualmente in costruzione, si sviluppa su tre piani e l'appartamento è situato al secondo piano, garantendo una vista piacevole e un ottima luminosità grazie alla triplice esposizione luminosità. L'appartamento si estende su una superficie commerciale di circa 88 metri quadrati e presenta una disposizione interna ben studiata per garantire comfort e funzionalità. L'ingresso si apre su un ampio soggiorno che conduce a una cucina abitabile, perfetta per chi ama cucinare e trascorrere del tempo in famiglia. La zona notte comprende due camere da letto spaziose, ideali per una famiglia o per chi desidera avere una stanza in più per gli ospiti o per un ufficio domestico. Sono presenti due bagni, che offrono praticità e comfort, e un balcone che aggiunge un tocco di spazio esterno privato. L'appartamento è arredato e dotato di infissi esterni in doppio vetro e PVC, che garantiscono un buon isolamento termico e acustico. Tra le caratteristiche aggiuntive dell'immobile, vi è un ampio balcone che rappresenta un valore aggiunto per chi ama gli spazi esterni vivibili. L'edificio è dotato di ascensore, facilitando l'accesso ai piani superiori, e l'appartamento è accessibile anche per persone con disabilità. La sicurezza è garantita da una porta blindata. Il riscaldamento è autonomo e a pavimento, alimentato da una pompa di calore, mentre l'impianto di aria condizionata offre la possibilità di regolare la temperatura sia in modalità freddo che caldo. Questo appartamento rappresenta un'opportunità unica per chi cerca una nuova costruzione moderna e funzionale in una delle località più affascinanti della costa laziale. POSSIBILITA' DI PSTI AUTO COPERTI E BOX Punti di forza de[…]



