Valutazione immobiliare indipendente, accurata e gratuita
L'Opinione di Caasa® per l'appartamento in vendita a Santa Marinella a 350.000 € (cod.64f45f6a)
Secondo Caasa, per l'appartamento in vendita a Santa Marinella, la richiesta di 350.000 € è leggermente svantaggiosa rispetto agli annunci simili.
Analisi immobiliare
L'appartamento, situato nella zona OMI B1, è proposto in vendita (da RockAgent S.p.A.) a
350.000 € per una
superficie commerciale di
90 m² e quindi ad un prezzo per metro quadrato pari a
3888 €/m²
.
Questo prezzo
è di poco superiore a quello stimato da Caasa per immobili in vendita simili per tipologia e caratteristiche, presenti nella stessa zona, che è compreso tra
3.306 €/m² e
3.619 €/m².
Data la posizione dell'appartamento sono stati utilizzati come raffronto i valori medi nelle zone limitrofe . Caasa non è stata in grado di determinare la classe energetica, ma ad affinare la stima hanno contribuito però anche lo stato dell'immobile (di nuova costruzione) e la presenza di alcune caratteristiche significative come la presenza dell'ascensore. In virtù di queste considerazioni l'intervallo dei valori possibili per l'offerta è relativamente ampio.
Mercato immobiliare a Santa Marinella
Per quanto riguarda più in generale la città di Santa Marinella, sono presenti al momento oltre 500 annunci per
appartamenti in vendita (meno dell'1% dell'intera provincia)
e il maggior numero di annunci per questa tipologia sono relativi alla zona di Santa Severa.
Possiamo inoltre considerare che in tutta la città negli ultimi 6 mesi, i prezzi per appartamenti in vendita sono
in forte aumento (+15,26%).
NOVITÀ Il risultato che vedi dipende dai dati che siamo riusciti ad estrarre dall'annuncio: ottieni una stima più accuranta di questo immobile, inserendo dati più precisi.
N.B. L'Opinione di Caasa® è un servizio sperimentale realizzato tramite tecniche di Intelligenza Artificiale, fornito senza alcuna garanzia di correttezza e completezza. Leggi il disclaimer o segnalaci un problema.
IMMAGINI
IN SINTESI
PROPOSTO DA:
RockAgent S.p.A.
Via G. Paisiello, 55, Roma (RM)
Verificata da Caasa®
DESCRIZIONE
di nuova costruzione con terrazza con balcone con termocondizionamento di nuova costruzione con ascensore
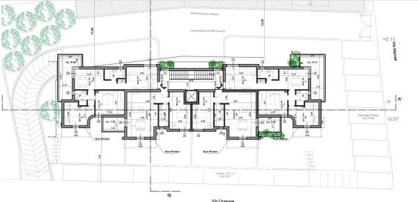
Situato nella tranquilla e affascinante località di Santa Marinella, l'appartamento in vendita si trova in Via Cicerone, una zona residenziale che offre un contesto ideale per chi cerca un ambiente sereno e ben collegato. La posizione al primo piano di un edificio di tre piani garantisce un facile accesso, supportato dalla presenza di un ascensore che facilita ulteriormente la mobilità, rendendo l'immobile adatto anche a persone con esigenze di accesso per disabili. L'appartamento, attualmente in costruzione, si estende su una superficie commerciale di circa 90 metri quadrati. La disposizione interna è studiata per offrire comfort e funzionalità, con due ampie camere da letto che assicurano spazio e privacy. La cucina è abitabile, ideale per chi ama cucinare e trascorrere momenti conviviali. Sono presenti due bagni, che aggiungono praticità e comodità alla vita quotidiana. Un balcone completa la composizione dell'immobile, offrendo uno spazio esterno privato di 20 MQ dove rilassarsi. L'appartamento è dotato di infissi esterni in doppio vetro e PVC, che garantiscono un buon isolamento termico e acustico. Il riscaldamento è autonomo e a pavimento, alimentato da una pompa di calore, una soluzione moderna ed efficiente dal punto di vista energetico. Sebbene l'immobile non sia arredato, è predisposto per l'installazione di un impianto di aria condizionata freddo/caldo, offrendo così la possibilità di personalizzare il comfort climatico. La sicurezza è garantita da una porta blindata, che assicura tranquillità e protezione. Questo appartamento rappresenta un'opportunità unica per chi desidera una casa moderna e funzionale in una delle località più affascinanti della costa laziale. Punti di forza dell'immobile: - luminoso - impianti di ultima generazione - ampi spazi esterni Gli asili per bambini nelle vicinanze dell'immobile sono SCUOLA MATERNA S. BENEDETTO (100 m), SCUOLA MATERNA S. TERESA DEL BAMBIN GESU' e altri 3 asili entro il raggio di 480 m. Inoltre, l'offerta scolastica comprende gli istituti: SCUOLA EL[…]




