Valutazione immobiliare indipendente, accurata e gratuita
Appartamento in vendita a Santa Marinella a 385.000 € (cod.64f45d46)
Caasa non ha sufficienti informazioni per commentare l'appartamento in vendita a Santa Marinella - 64f45d46.
Analisi immobiliare
I dati in posseso di Caasa per quest'immobile sono insufficienti, inaffidabili o contraddittori per proporre un'analisi attendibile.
Mercato immobiliare a Santa Marinella
Per quanto riguarda più in generale la città di Santa Marinella, sono presenti al momento oltre 500 annunci per
appartamenti in vendita (meno dell'1% dell'intera provincia)
e il maggior numero di annunci per questa tipologia sono relativi alla zona di Santa Severa.
Possiamo inoltre considerare che in tutta la città negli ultimi 6 mesi, i prezzi per appartamenti in vendita sono
in forte aumento (+15,26%).
NOVITÀ Il risultato che vedi dipende dai dati che siamo riusciti ad estrarre dall'annuncio: ottieni una stima più accuranta di questo immobile, inserendo dati più precisi.
N.B. L'Opinione di Caasa® è un servizio sperimentale realizzato tramite tecniche di Intelligenza Artificiale, fornito senza alcuna garanzia di correttezza e completezza. Leggi il disclaimer o segnalaci un problema.
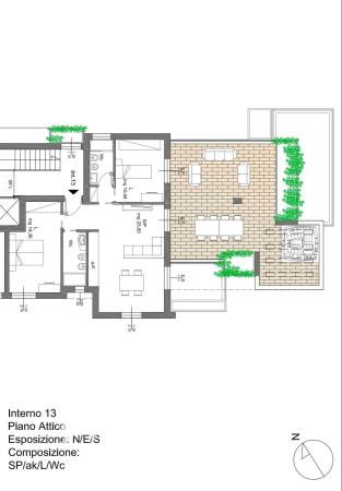
IMMAGINI
IN SINTESI
PROPOSTO DA:
RockAgent S.p.A.
Via G. Paisiello, 55, Roma (RM)
Verificata da Caasa®
DESCRIZIONE
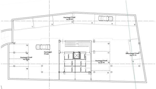
con terrazza con posto auto con termocondizionamento con riscaldamento autonomo con garage con cucina abitabile con ascensore
Situato nella tranquilla e affascinante cittadina di Santa Marinella, questo attico in vendita si trova in Via Cicerone, una zona che offre un contesto residenziale sereno e ben collegato. La posizione è ideale per chi cerca un rifugio lontano dal caos cittadino, pur rimanendo a breve distanza dai principali servizi e dalle bellezze del litorale laziale. L'edificio, in fase di costruzione, si sviluppa su tre piani e l'attico è situato all'ultimo piano, garantendo un accesso agevole anche per persone con disabilità grazie alla presenza di un ascensore. L'immobile si estende su una superficie commerciale di circa 92 metri quadrati e presenta una disposizione interna ben studiata. L'attico è composto da due camere da letto, una cucina abitabile che offre ampio spazio per cucinare e intrattenere, e un bagno moderno. Un terrazzo completa la proprietà, offrendo uno spazio esterno privato dove rilassarsi e godere del clima mite della zona. Gli infissi esterni in doppio vetro e PVC assicurano un buon isolamento termico e acustico, contribuendo al comfort abitativo. Tra le caratteristiche aggiuntive dell'attico, vi è un impianto di riscaldamento autonomo a pavimento alimentato da una pompa di calore, che garantisce un'efficienza energetica ottimale. L'immobile è dotato di una porta blindata, assicurando un elevato livello di sicurezza. Sebbene l'attico sia privo di arredamento, offre la possibilità di personalizzare gli interni secondo i propri gusti e necessità. L'aria condizionata, predisposta per funzionare sia in modalità freddo che caldo, assicura un comfort climatico durante tutto l'anno. Questo attico rappresenta un'opportunità unica per chi desidera una casa moderna e funzionale in una delle località più affascinanti della costa laziale. POSSIBILITA' DI POSTO AUTO COPERTO E BOX Punti di forza dell'immobile: - luminoso - impianti di ultima generazione - ampi spazi esterni Gli asili per bambini nelle vicinanze dell'immobile sono SCUOLA MATERNA S. BENEDETTO (100 m), SCUOLA MATERNA S. TERESA DEL BAMBIN GESU' e[…]




