Valutazione immobiliare indipendente, accurata e gratuita
Appartamento in vendita a Santa Marinella a 335.000 € (cod.64f435e2)
Caasa non ha sufficienti informazioni per commentare l'appartamento in vendita a Santa Marinella - 64f435e2.
Analisi immobiliare
I dati in posseso di Caasa per quest'immobile sono insufficienti, inaffidabili o contraddittori per proporre un'analisi attendibile.
Mercato immobiliare a Santa Marinella
Per quanto riguarda più in generale la città di Santa Marinella, sono presenti al momento oltre 500 annunci per
appartamenti in vendita (meno dell'1% dell'intera provincia)
e il maggior numero di annunci per questa tipologia sono relativi alla zona di Santa Severa.
Possiamo inoltre considerare che in tutta la città negli ultimi 6 mesi, i prezzi per appartamenti in vendita sono
in forte aumento (+15,26%).
NOVITÀ Il risultato che vedi dipende dai dati che siamo riusciti ad estrarre dall'annuncio: ottieni una stima più accuranta di questo immobile, inserendo dati più precisi.
N.B. L'Opinione di Caasa® è un servizio sperimentale realizzato tramite tecniche di Intelligenza Artificiale, fornito senza alcuna garanzia di correttezza e completezza. Leggi il disclaimer o segnalaci un problema.
IMMAGINI
IN SINTESI
PROPOSTO DA:
RockAgent S.p.A.
Via G. Paisiello, 55, Roma (RM)
Verificata da Caasa®
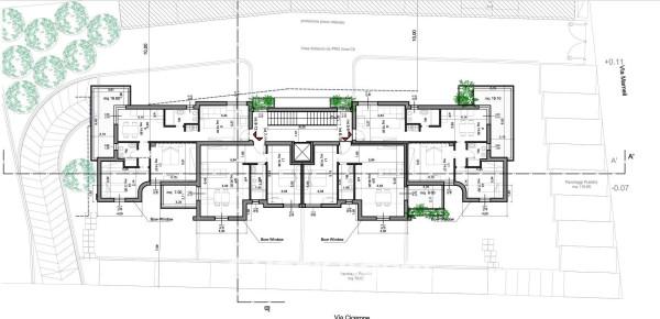
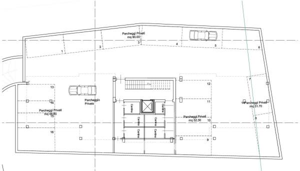
DESCRIZIONE
con terrazza con posto auto con balcone con termocondizionamento con garage
Situato nella tranquilla e affascinante cittadina di Santa Marinella, l'appartamento in vendita si trova in Via Cicerone, una zona che offre un perfetto equilibrio tra serenità e comodità. La posizione è ideale per chi desidera vivere in un contesto residenziale, lontano dal caos cittadino, ma con facile accesso ai servizi essenziali e alle principali vie di comunicazione. L'edificio, in fase di costruzione, si sviluppa su tre piani e l'appartamento è situato al piano secondo garantendo un accesso agevole anche per persone con disabilità. L'appartamento si estende su una superficie commerciale di circa 87 metri quadrati e offre un ambiente accogliente e ben progettato. La disposizione interna comprende due camere da letto, ideali per una famiglia o per chi desidera uno spazio aggiuntivo per ospiti o per un ufficio domestico. La cucina è abitabile, perfetta per chi ama cucinare e trascorrere del tempo in compagnia. Sono presenti due bagni, che offrono comfort e praticità per gli abitanti della casa. Un balcone di 17MQ completa la proprietà, offrendo uno spazio esterno dove rilassarsi . L'immobile è dotato di infissi esterni in doppio vetro e PVC, che garantiscono un ottimo isolamento termico e acustico. Il riscaldamento è autonomo e a pavimento, alimentato da una pompa di calore, assicurando un'efficienza energetica ottimale. L'appartamento è dotato di un impianto fotovoltaico di ultima generazione. La porta blindata offre un ulteriore livello di sicurezza. Inoltre, l'impianto di aria condizionata, che fornisce sia freddo che caldo, assicura un comfort abitativo durante tutto l'anno. Questo appartamento rappresenta un'opportunità unica per chi cerca una nuova casa moderna e funzionale in una delle località più affascinanti della costa laziale. POSSIBILITA' DI POSTI AUTO COPERTI E BOX NEL PIANO SEMINTERRATO Punti di forza dell'immobile: - luminoso - impianti di ultima generazione - ampi spazi esterni Gli asili per bambini nelle vicinanze dell'immobile sono SCUOLA MATERNA S. BENEDETTO (100 m), SCUOLA MATERNA[…]




