Valutazione immobiliare indipendente, accurata e gratuita
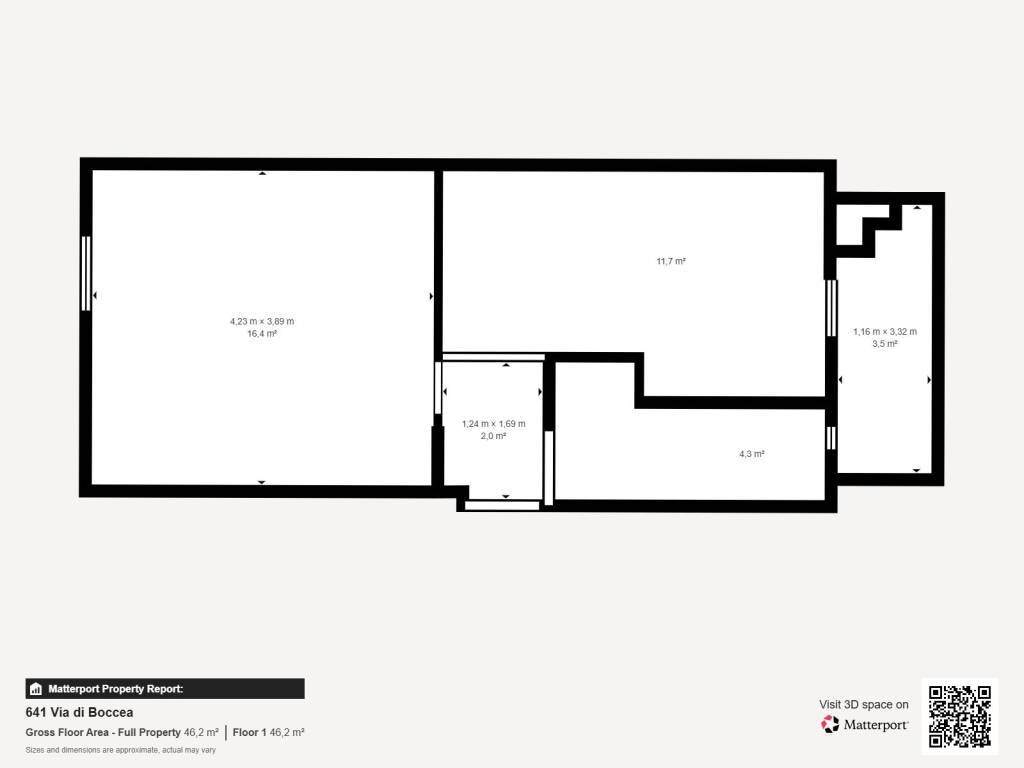
Appartamento in vendita a Roma in zona Aurelio a 120.000 € (cod.659d8978)
Caasa non ha sufficienti informazioni per commentare l'appartamento in vendita a Roma in zona Aurelio - 659d8978.
Analisi immobiliare
I dati in posseso di Caasa per quest'immobile sono insufficienti, inaffidabili o contraddittori per proporre un'analisi attendibile.
Mercato immobiliare a Roma
Per quanto riguarda più in generale la città di Roma, sono presenti al momento ben oltre 30.000 annunci per
appartamenti in vendita (più della metà dell'intera provincia)
e il maggior numero di annunci per questa tipologia sono relativi alla zona di Ostia, ma anche la zona di Aurelio è molto attiva dal punto di vista immobiliare.
La richiesta media nella zona dove sorge l'appartamento (Aurelio pressi Via di Boccea) è pari a
4.615 €/m², non troppo distante dai valori medi cittadini per appartamenti in vendita.
Per quanto riguarda la dinamica dei prezzi, negli ultimi 6 mesi i prezzi medi in tutta la città per appartamenti in vendita sono
in aumento (+4,16%).
NOVITÀ Il risultato che vedi dipende dai dati che siamo riusciti ad estrarre dall'annuncio: ottieni una stima più accuranta di questo immobile, inserendo dati più precisi.
N.B. L'Opinione di Caasa® è un servizio sperimentale realizzato tramite tecniche di Intelligenza Artificiale, fornito senza alcuna garanzia di correttezza e completezza. Leggi il disclaimer o segnalaci un problema.
