Valutazione immobiliare indipendente, accurata e gratuita
Appartamento in vendita a Roma in zona Esquilino a 540.000 € (cod.6546629d)
Caasa non ha sufficienti informazioni per commentare l'appartamento in vendita a Roma in zona Esquilino - 6546629d.
Analisi immobiliare
I dati in posseso di Caasa per quest'immobile sono insufficienti, inaffidabili o contraddittori per proporre un'analisi attendibile.
Mercato immobiliare a Roma
Per quanto riguarda più in generale la città di Roma, sono presenti al momento ben oltre 30.000 annunci per
appartamenti in vendita (più della metà dell'intera provincia)
e il maggior numero di annunci per questa tipologia sono relativi alla zona di Gianicolense, mentre la zona di Esquilino risulta molto meno attiva considerando il numero di annunci presenti.
La richiesta media nella zona dove sorge l'appartamento (Esquilino pressi Via Principe Amedeo) è pari a
4.980 €/m², non troppo distante dai valori medi cittadini per appartamenti in vendita.
Relativamente alla dinamica dei prezzi, possiamo dire che negli ultimi 6 mesi i prezzi medi in tutta la città per appartamenti in vendita sono
in leggero aumento (+2,79%).
NOVITÀ Il risultato che vedi dipende dai dati che siamo riusciti ad estrarre dall'annuncio: ottieni una stima più accuranta di questo immobile, inserendo dati più precisi.
N.B. L'Opinione di Caasa® è un servizio sperimentale realizzato tramite tecniche di Intelligenza Artificiale, fornito senza alcuna garanzia di correttezza e completezza. Leggi il disclaimer o segnalaci un problema.
IMMAGINI
IN SINTESI
PROPOSTO DA:
MONDO CASA IMMOBILIARE AFFILIATO FRIMM
DESCRIZIONE
da ristrutturare con ascensore con angolo cottura da ristrutturare edificio storico con cortile
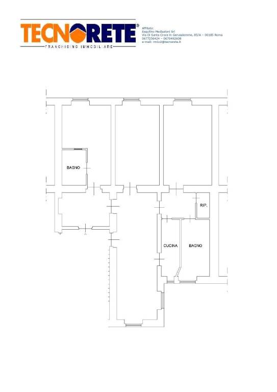
QUARTIERE ESQUILINO - VIA PRINCIPE AMEDEO In una delle vie più conosciute del quartiere, a poca distanza di Piazza Manfredo Fanti, proponiamo la vendita di un ampio quadrilocale. L'immobile, posto al quinto piano di uno stabile d'epoca servito da ascensore e portiere, è dotato di doppio ingresso e si estende su una superficie di circa 137 mq. Si compone di soggiorno con doppia finestra, cucinotto comunicante con il soggiorno, tre grandi camere da letto e doppi servizi, uno dei quali all'interno di una delle camere. La soluzione si presenta totalmente da ristrutturare ed essendo composta quasi unicamente da tramezzi all'interno è possibile ridistribuire gli spazi a seconda delle proprie esigenze. Vista la presenza del doppio ingresso si può valutare anche il frazionamento in due unità abitative. L'immobile gode di un doppio affaccio, esterno su Principe Amedeo ed interno su cortile, che unito all'altezza del piano, garantisce luminosità e ricambio d'aria costante. Ubicato in zona centrale, a due passi da tutti i maggiori servizi di pubblica utilità che il quartiere offre, la soluzione è ideale sia per chi è alla ricerca di un'abitazione principale sia per chi vuole fare un investimento sicuro vista la redditività delle locazioni - brevi o a lungo termine - nella zona


