Valutazione immobiliare indipendente, accurata e gratuita
Appartamento in vendita a Roma in zona Cinquina a 239.000 € (cod.652bdade)
Caasa non ha sufficienti informazioni per commentare l'appartamento in vendita a Roma in zona Cinquina - 652bdade.
Analisi immobiliare
I dati in posseso di Caasa per quest'immobile sono insufficienti, inaffidabili o contraddittori per proporre un'analisi attendibile.
Mercato immobiliare a Roma
Per quanto riguarda più in generale la città di Roma, sono presenti al momento ben oltre 30.000 annunci per
appartamenti in vendita (più della metà dell'intera provincia)
e il maggior numero di annunci per questa tipologia sono relativi alla zona di Gianicolense, mentre la zona di Cinquina risulta molto meno attiva considerando il numero di annunci presenti.
La richiesta media nella zona dove sorge l'appartamento (Cinquina pressi Via Domenico Cavalca) è pari a
3.390 €/m², non troppo distante dai valori medi cittadini per appartamenti in vendita.
Possiamo inoltre considerare che in tutta la città negli ultimi 6 mesi, i prezzi per appartamenti in vendita sono
in deciso aumento (+8,19%).
NOVITÀ Il risultato che vedi dipende dai dati che siamo riusciti ad estrarre dall'annuncio: ottieni una stima più accuranta di questo immobile, inserendo dati più precisi.
N.B. L'Opinione di Caasa® è un servizio sperimentale realizzato tramite tecniche di Intelligenza Artificiale, fornito senza alcuna garanzia di correttezza e completezza. Leggi il disclaimer o segnalaci un problema.
IMMAGINI
IN SINTESI
PROPOSTO DA:
EUROPA REAL ESTATE S.A.S.
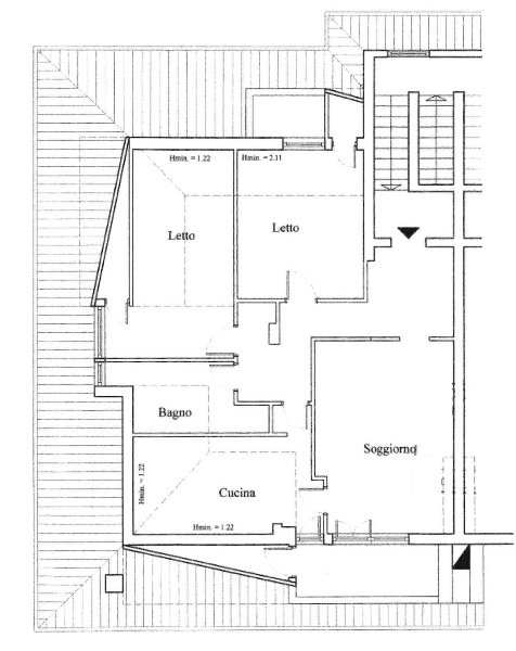
DESCRIZIONE
con balcone con cantina con cucina abitabile
In una elegante palazzina in cortina, proponiamo in vendita un attico luminoso e panoramico situato all'ultimo piano. Questo immobile si distingue per la sua ampia metratura e per la disposizione degli spazi, che garantisce comfort e funzionalità. L'attico è composto da un ingresso che conduce a un ampio salone, ideale per accogliere amici e familiari. Sono presenti due camere da letto spaziose, una cucina abitabile perfetta per chi ama cucinare e un bagno, con la possibilità di realizzarne un secondo per maggiore comodità. Completa la proprietà un ripostiglio e due balconi, che offrono la possibilità di godere di momenti di relax all'aperto con vista panoramica. Non perdere questa opportunità unica! Fissa un appuntamento con noi inviando un messaggio su WhatsApp al numero 3517223808 o chiamando il numero 0687201176. Valuta con noi il tuo immobile e scopri il suo reale valore di mercato. Affidaci il mandato, in omaggio la certificazione di prestazione energetica. Contattaci per una valutazione accurata e trasparente del tuo immobile 0687201176. EPI: 250 kwh/m2 anno






