Valutazione immobiliare indipendente, accurata e gratuita
Appartamento in vendita a Roma in zona Trevi-Colonna a 2.250.000 € (cod.6526d6e9)
Caasa non ha sufficienti informazioni per commentare l'appartamento a Roma in zona Trevi-Colonna - 6526d6e9.
Analisi immobiliare
I dati in posseso di Caasa per quest'immobile sono insufficienti, inaffidabili o contraddittori per proporre un'analisi attendibile.
Mercato immobiliare a Roma
Per quanto riguarda più in generale la città di Roma, sono presenti al momento ben oltre 30.000 annunci per
appartamenti in vendita (più della metà dell'intera provincia)
e il maggior numero di annunci per questa tipologia sono relativi alla zona di Gianicolense, mentre la zona di Trevi-Colonna risulta molto meno attiva considerando il numero di annunci presenti.
La richiesta media nella zona dove sorge l'appartamento (Trevi-Colonna pressi Piazza di Monte Citorio) è pari a
9.120 €/m², molto vicina ai valori della zona Campo Marzio che sono i più alti della città .
Relativamente alla dinamica dei prezzi, possiamo dire che negli ultimi 6 mesi i prezzi medi in tutta la città per appartamenti in vendita sono
in deciso aumento (+8,19%).
NOVITÀ Il risultato che vedi dipende dai dati che siamo riusciti ad estrarre dall'annuncio: ottieni una stima più accuranta di questo immobile, inserendo dati più precisi.
N.B. L'Opinione di Caasa® è un servizio sperimentale realizzato tramite tecniche di Intelligenza Artificiale, fornito senza alcuna garanzia di correttezza e completezza. Leggi il disclaimer o segnalaci un problema.
IMMAGINI
IN SINTESI
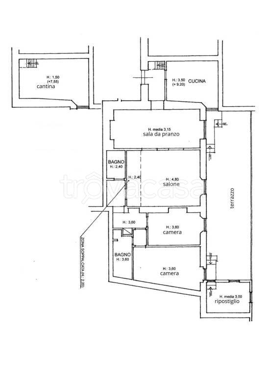
DESCRIZIONE
con terrazza edificio storico
Nel cuore pulsante del centro storico di Roma, a pochi passi da Montecitorio e dalle vie più iconiche della Capitale, proponiamo in vendita un appartamento di grande charme situato in Via degli Uffici del Vicario, una delle strade più eleganti e riservate del centro. L’immobile, di circa 160 mq, si trova all’interno di un palazzo d’epoca di rappresentanza e si presenta in ottime condizioni interne. Gli spazi interni sono ampi, ben distribuiti e rifiniti con gusto: l’ingresso introduce a un luminoso salone doppio, ideale per accogliere ospiti o godersi momenti di relax in un ambiente elegante e tranquillo. La cucina è abitabile, spaziosa e funzionale, perfetta sia per la vita quotidiana che per occasioni conviviali. La zona notte è composta da due camere da letto matrimoniali, silenziose e luminose, servite da due bagni , moderni e ben rifiniti. Ogni ambiente è caratterizzato da altezze importanti, luce naturale e dettagli architettonici che conferiscono all’appartamento uno stile classico ma attuale. Il vero punto di forza dell’appartamento è il terrazzo privato di 45 mq, uno spazio raro nel centro di Roma, ideale per cene all’aperto, momenti di relax o per godersi una vista suggestiva sui tetti e le meraviglie del centro storico. Una soluzione ideale per chi desidera vivere in uno dei quartieri più affascinanti e centrali di Roma, senza rinunciare a comfort, spazio e riservatezza. Contattaci per ulteriori informazioni o per fissare un appuntamento. Questa è un’opportunità rara nel cuore di Roma


