Valutazione immobiliare indipendente, accurata e gratuita
Negozio in vendita a Roma in zona Finocchio (cod.64fd5fb9)
Caasa non ha sufficienti informazioni per commentare il negozio in vendita a Roma in zona Finocchio - 64fd5fb9.
Analisi immobiliare
I dati in posseso di Caasa per quest'immobile sono insufficienti, inaffidabili o contraddittori per proporre un'analisi attendibile.
Mercato immobiliare a Roma
Per quanto riguarda più in generale la città di Roma, sono presenti al momento ben oltre 10.000 annunci per
negozi in vendita (quasi tre quarti dell'intera provincia)
e il maggior numero di annunci per questa tipologia sono relativi alla zona di Gianicolense, mentre la zona di Finocchio risulta molto meno attiva considerando il numero di annunci presenti.
Vedi altre informazioni direttamente su
Mercato-Immobiliare.info
NOVITÀ Il risultato che vedi dipende dai dati che siamo riusciti ad estrarre dall'annuncio: ottieni una stima più accuranta di questo immobile, inserendo dati più precisi.
N.B. L'Opinione di Caasa® è un servizio sperimentale realizzato tramite tecniche di Intelligenza Artificiale, fornito senza alcuna garanzia di correttezza e completezza. Leggi il disclaimer o segnalaci un problema.
IMMAGINI
IN SINTESI
DESCRIZIONE
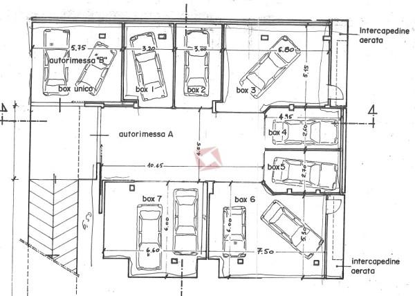
di nuova costruzione con posto auto con garage di nuova costruzione
Proponiamo in Vendita, in Via Bolognetta zona centralissima di Finocchio, Box di Nuova Costruzione a partire da 13 mq. Possibilità di diverse e ampie metrature. Tutti i box sono dotati di serranda basculante e impianto luce. La posizione è strategica […]
