Valutazione immobiliare indipendente, accurata e gratuita
Appartamento in vendita a Roma in zona Portuense a 275.000 € (cod.64fc6a1c)
Caasa non ha sufficienti informazioni per commentare l'appartamento in vendita a Roma in zona Portuense - 64fc6a1c.
Analisi immobiliare
I dati in posseso di Caasa per quest'immobile sono insufficienti, inaffidabili o contraddittori per proporre un'analisi attendibile.
Mercato immobiliare a Roma
Per quanto riguarda più in generale la città di Roma, sono presenti al momento ben oltre 30.000 annunci per
appartamenti in vendita (più della metà dell'intera provincia)
e il maggior numero di annunci per questa tipologia sono relativi alla zona di Gianicolense, ma anche la zona di Portuense è molto attiva dal punto di vista immobiliare.
La richiesta media nella zona dove sorge l'appartamento (Portuense pressi Via Portuense) è pari a
3.570 €/m², non troppo distante dai valori medi cittadini per appartamenti in vendita.
Per quanto riguarda la dinamica dei prezzi, negli ultimi 6 mesi i prezzi medi in tutta la città per appartamenti in vendita sono
in deciso aumento (+8,19%).
NOVITÀ Il risultato che vedi dipende dai dati che siamo riusciti ad estrarre dall'annuncio: ottieni una stima più accuranta di questo immobile, inserendo dati più precisi.
N.B. L'Opinione di Caasa® è un servizio sperimentale realizzato tramite tecniche di Intelligenza Artificiale, fornito senza alcuna garanzia di correttezza e completezza. Leggi il disclaimer o segnalaci un problema.
IMMAGINI
IN SINTESI
DESCRIZIONE
di recente ristrutturazione con terrazza con balcone con cantina di recente ristrutturazione con cucina abitabile con termocondizionamento con riscaldamento autonomo
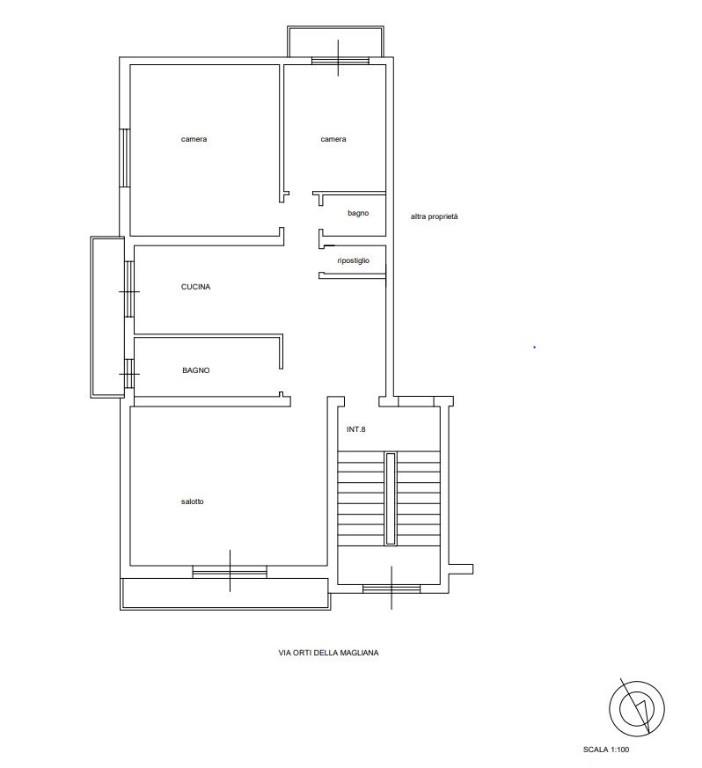
Da Privato. Delizioso e luminoso appartamento, ultimo piano, tripla esposizione (tre balconi) situato in tranquillo condominio familiare. L'appartamento, in ottime condizioni generali, si presenta suddiviso in ampio ingresso, grande salone con balcone, camera matrimoniale, cameretta, ampio bagno finestrato, secondo bagno di servizio, cucina abitabile con balcone e ripostiglio. Nell'appartamento sono presenti caldaia a gas, riscaldamento autonomo e aria condizionata. Zona Via delle Vigne, Trullo, Monte delle Capre. La posizione è ottima, vicino a servizi di primaria e secondaria necessità ma comunque in una strada riservata. Eccellente il collegamento logistico dato dalla vicinanza al GRA e a Via Portuense, che attraverso una fitta rete di autobus collega il quartiere al resto della Capitale. Disponibile da subito anche semi ammobiliato. NO AGENZIE

