Valutazione immobiliare indipendente, accurata e gratuita
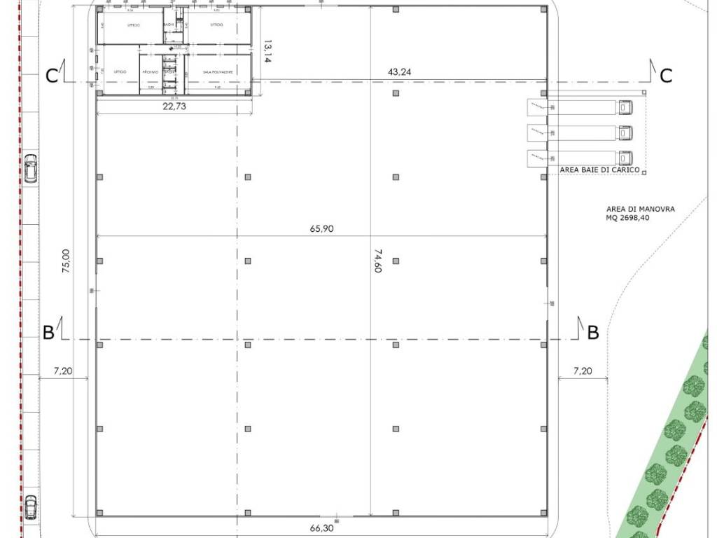
Capannone in affitto a Roma in zona Ponte Mammolo a 30.000 € mese (cod.655dfa39)
Caasa non ha sufficienti informazioni per commentare il capannone in affitto a Roma in zona Ponte Mammolo - 655dfa39.
Analisi immobiliare
I dati in posseso di Caasa per quest'immobile sono insufficienti, inaffidabili o contraddittori per proporre un'analisi attendibile.
Mercato immobiliare a Roma
Per quanto riguarda più in generale la città di Roma, sono presenti al momento più di 200 annunci per
capannoni in affitto (quasi la metà dell'intera provincia)
e il maggior numero di annunci per questa tipologia sono relativi alla zona di Casal Morena, ma anche la zona di Ponte Mammolo è molto attiva dal punto di vista immobiliare.
Vedi altre informazioni direttamente su
Mercato-Immobiliare.info
NOVITÀ Il risultato che vedi dipende dai dati che siamo riusciti ad estrarre dall'annuncio: ottieni una stima più accuranta di questo immobile, inserendo dati più precisi.
N.B. L'Opinione di Caasa® è un servizio sperimentale realizzato tramite tecniche di Intelligenza Artificiale, fornito senza alcuna garanzia di correttezza e completezza. Leggi il disclaimer o segnalaci un problema.
