Valutazione immobiliare indipendente, accurata e gratuita
Appartamento in vendita a Rocca Priora a 44.613 € (cod.64f598b0)
Caasa non ha sufficienti informazioni per commentare l'appartamento in vendita a Rocca Priora - 64f598b0.
Analisi immobiliare
I dati in posseso di Caasa per quest'immobile sono insufficienti, inaffidabili o contraddittori per proporre un'analisi attendibile.
Mercato immobiliare a Rocca Priora
Per quanto riguarda più in generale il comune di Rocca Priora, sono presenti al momento più di 150 annunci per
appartamenti in vendita (meno dell'1% dell'intera provincia)
e il maggior numero di annunci per questa tipologia sono relativi alla zona di Colle di Fuori.
Per quanto riguarda la dinamica dei prezzi, negli ultimi 6 mesi i prezzi medi in tutto il comune per appartamenti in vendita sono
in sostanziale aumento (+5,21%).
NOVITÀ Il risultato che vedi dipende dai dati che siamo riusciti ad estrarre dall'annuncio: ottieni una stima più accuranta di questo immobile, inserendo dati più precisi.
N.B. L'Opinione di Caasa® è un servizio sperimentale realizzato tramite tecniche di Intelligenza Artificiale, fornito senza alcuna garanzia di correttezza e completezza. Leggi il disclaimer o segnalaci un problema.
IMMAGINI
IN SINTESI
DESCRIZIONE
di nuova costruzione con cantina con angolo cottura con termocondizionamento in asta giudiziaria con riscaldamento autonomo di nuova costruzione
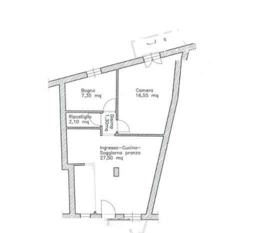
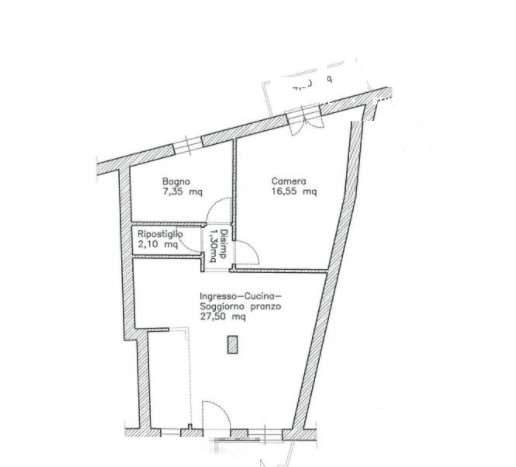
CONTATTACI PER UNA CONSULENZA GRATUITA ALLO 06/87607612 Rocca Priora (RM) Via Alcide De Gasperi, 6. Appartamento ubicato al piano secondo, composto da soggiorno-pranzo, ingresso, camera da letto, bagno e ripostiglio. Il tutto avente una superficie co […]
