Valutazione immobiliare indipendente, accurata e gratuita

Appartamento in vendita a Rocca di Papa a 49.992 € (cod.64ea6a4b)

Caasa non ha sufficienti informazioni per commentare l'appartamento in vendita a Rocca di Papa - 64ea6a4b.

Analisi immobiliare
I dati in posseso di Caasa per quest'immobile sono insufficienti, inaffidabili o contraddittori per proporre un'analisi attendibile.
Mercato immobiliare a Rocca di Papa
Per quanto riguarda più in generale la città di Rocca di Papa, sono presenti al momento più di 300 annunci per appartamenti in vendita (meno dell'1% dell'intera provincia) .

La dinamica dei prezzi in tutta la città mostra che negli ultimi 6 mesi, i prezzi per appartamenti in vendita sono in forte aumento (+11,47%).

NOVITÀ Il risultato che vedi dipende dai dati che siamo riusciti ad estrarre dall'annuncio: ottieni una stima più accuranta di questo immobile, inserendo dati più precisi.

N.B. L'Opinione di Caasa® è un servizio sperimentale realizzato tramite tecniche di Intelligenza Artificiale, fornito senza alcuna garanzia di correttezza e completezza. Leggi il disclaimer o segnalaci un problema.

IMMAGINI

IN SINTESI

Prezzo:
49.992 €
Superficie:
140 m²
Prezzo al m²:
357 €/m²
Piano:
terra
Bagni:
n.d.
Classe energetica:
A
Città:
Rocca di Papa (RM)
Zona OMI:
D1 (ZONA PERIFERICA - CAMPI DI ANNIBALE)
Indirizzo:
Pubblicato:
mar 7 ottobre 2025

PROPOSTO DA:

Studio Canova

DESCRIZIONE

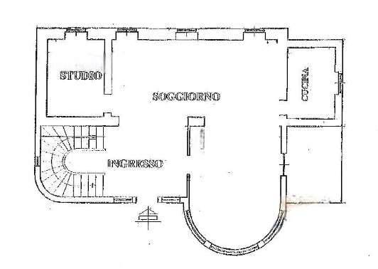
in asta giudiziaria con cucina abitabile con termocondizionamento con caminetto con riscaldamento autonomo

NUOVA PROPOSTA IMMOBILE DISPONIBILE Trattasi di un appartamento situato in Via Cavour nel Comune di Rocca di Papa (RM). L'alloggio è ubicato al piano terra di un edificio residenziale e gode di una superficie di 140,00 mq. L'abitazione si compone di un ampio ingresso con scala di collegamento per il piano superiore, un salone con camino, un salotto, una cucina ed uno studio. Nel complesso, l'appartamento si presenta come una soluzione pratica e funzionale, con una buona distribuzione degli spazi e una posizione comoda. Per te la possibilità di avere un preventivo per il mutuo a condizioni vantaggiose con i nostri partner. Ulteriori dettagli, foto degli interni, planimetrie e altre info, se disponibili, saranno consultabili previo appuntamento nella sede di ROMA con MICHELE che inoltre ti informerà sulle possibilità di aggiudicarti questo affare. L'immobile pubblicato al momento è sottoposto a procedura di vendita legale; Gescom srl è specializzata nella ricerca e pianificazione di investimenti immobiliari secondo innovative strategie di acquisto. Contattaci subito potrai valutare assieme a un nostro tecnico canali distinti di acquisto dell'immobile, procedura di vendita diretta senza ricorrere all'asta (d.lgs. 149/2022) e ancora stralcio immobiliare. Le informazioni sopra riportate non sostituiscono l'avviso pubblicato dal Tribunale competente ne' l'integrale gestione da parte del delegato designato. Il testo e le specifiche indicate nella presente pagina sono generate automaticamente attraverso l'utilizzo di software e/o da A. I., Gescom srl invita a verificare le formazioni e i materiali multimediali sui canali ufficiali, declinando fin d'ora ogni responsabilità su eventuali errori o incongruenze. Gescom Italia srl leader negli stralci immobiliari e nella consulenza tecnico legale, non si occupa di attività di intermediazione imm. di cui alla legge 39/89. Cl. energ. da verificare. Le foto pubblicate nel presente annuncio sono indicative e non esaustive della tipologia, qualità, consistenza e indicazione[…]

  • annuncio-casa.it
  • bancadellecase.it
  • ioaffitto.it