Valutazione immobiliare indipendente, accurata e gratuita
Appartamento in vendita a Pomezia a 94.500 € (cod.651783d0)
Caasa non ha sufficienti informazioni per commentare l'appartamento in vendita a Pomezia - 651783d0.
Analisi immobiliare
I dati in posseso di Caasa per quest'immobile sono insufficienti, inaffidabili o contraddittori per proporre un'analisi attendibile.
Mercato immobiliare a Pomezia
Per quanto riguarda più in generale la città di Pomezia, sono presenti al momento ben oltre mille annunci per
appartamenti in vendita (meno del 5% dell'intera provincia)
e il maggior numero di annunci per questa tipologia sono relativi alla zona di Torvaianica.
Per quanto riguarda la dinamica dei prezzi, negli ultimi 6 mesi i prezzi medi in tutta la città per appartamenti in vendita sono
in deciso aumento (+8,77%).
NOVITÀ Il risultato che vedi dipende dai dati che siamo riusciti ad estrarre dall'annuncio: ottieni una stima più accuranta di questo immobile, inserendo dati più precisi.
N.B. L'Opinione di Caasa® è un servizio sperimentale realizzato tramite tecniche di Intelligenza Artificiale, fornito senza alcuna garanzia di correttezza e completezza. Leggi il disclaimer o segnalaci un problema.
IMMAGINI
IN SINTESI
DESCRIZIONE
con posto auto con balcone con cantina in asta giudiziaria con cucina abitabile con garage con ascensore
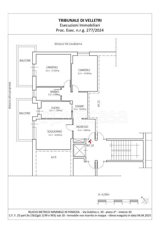
Appartamento e cantina/garage. Appartamento posto al secondo piano della palazzina 2, è servito da ascensore ed ècomposto da ingresso, soggiorno, cucina abitabile, due camere, un bagno e due balconi. Locale ad uso cantina/garage posto al piano semint […]
