Valutazione immobiliare indipendente, accurata e gratuita
Appartamento in vendita a Pomezia a 102.500 € (cod.64f6b78b)
Caasa non ha sufficienti informazioni per commentare l'appartamento in vendita a Pomezia - 64f6b78b.
	Analisi immobiliare
	
	I dati in posseso di Caasa per quest'immobile sono insufficienti, inaffidabili o contraddittori per proporre un'analisi attendibile.
	
	Mercato immobiliare a Pomezia
	
	Per quanto riguarda più in generale la città di Pomezia, sono presenti al momento ben oltre mille annunci per 
		appartamenti in vendita (meno del 5% dell'intera provincia) 
	
	 e il maggior numero di annunci per questa tipologia sono relativi alla zona di Torvaianica.
	
	
	
	La dinamica dei prezzi in tutta la città mostra che negli ultimi 6 mesi, i prezzi per appartamenti in vendita sono 
		in deciso aumento (+8,77%).
	
	
	
NOVITÀ Il risultato che vedi dipende dai dati che siamo riusciti ad estrarre dall'annuncio: ottieni una stima più accuranta di questo immobile, inserendo dati più precisi.
N.B. L'Opinione di Caasa® è un servizio sperimentale realizzato tramite tecniche di Intelligenza Artificiale, fornito senza alcuna garanzia di correttezza e completezza. Leggi il disclaimer o segnalaci un problema.
IMMAGINI
IN SINTESI
PROPOSTO DA:
                             
                        
Studio Mi.Eli.
Via del Mare, 2/d, Pomezia (RM)
Verificata da Caasa®
DESCRIZIONE
con posto auto con terrazza con balcone con cantina con angolo cottura in asta giudiziaria con ascensore
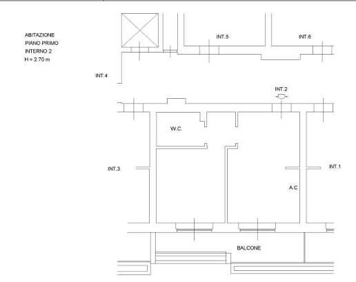
Appartamento di mq 52 sito a Pomezia (RM) in Via Don Luigi Sturzo n. 24/B posto al Primo Piano. L'immobile è composto da soggiorno con angolo cottura, camera, bagno e balcone ed è, inoltre, dotato di impianto solare termico funzionante. Sono presenti anche cantina di mq 10 e posto auto di mq 13 al Piano Secondo interrato collegati ai piani a mezzo di ascensore o scale. Il tutto in normale stato di conservazione come riportato sulla CTU visionabile presso lo Studio. L'immobile viene venduto tramite vendita giudiziaria con l’assistenza legale dello Studio e il prezzo indicato si riferisce all’offerta minima. POSSIBILITÀ' DI ACQUISTO IN PRE-ASTA . OFFERTA MINIMA € 102.500,00 Valore perizia CTU € 102.500,00 Studio Mi.Eli. and Associates ltd POMEZIA (RM) Tel. 06/83778285 Cell. 340/5355446 Studio Mi.Eli. è uno Studio Legale costituito da un gruppo di professionisti del settore legale e immobiliare che da anni credono che il mercato delle aste immobiliari sia un’alternativa forte, concreta e conveniente rispetto all’acquisto sul mercato libero. Nasciamo con l’intento di promuovere una particolare tipologia di acquisto, sfatando idee e preconcetti che spesso hanno accompagnato le vendite immobiliari all’asta. Il nostro scopo è promuovere un mercato ritenuto ancora oggi riservato a pochi, facendone conoscere le grandi potenzialità. Riteniamo che le aste immobiliari siano un’opportunità concreta per tutti e per questo motivo la nostra consulenza mira a semplificare al massimo tutte le procedure operative e burocratiche, garantendo trasparenza e certezza riguardo ciò che si acquista. Tutto questo grazie alla consulenza tecnica, giuridica e commerciale dei nostri esperti. Con un primo incontro conoscitivo potremo valutare insieme la reale possibilità di riuscire a soddisfare le Vostre esigenze. I nostri consulenti sono a disposizione per accompagnare il cliente dalla ricerca dell'immobile fino alla consegna delle chiavi, compreso l'eventuale assistenza per l'ottenimento di un mutuo. Studio Mi.Eli. and Associates ltd […]
 
                               
                               
                               
                               
                               
                               
                               
                               
                               
                               
                               
                               
                               
                               
                              
