Valutazione immobiliare indipendente, accurata e gratuita

Casa indipendente in vendita a Pomezia in zona Torvaianica a 295.000 € (cod.64f3c5a8)

Caasa non ha sufficienti informazioni per commentare la casa indipendente a Pomezia in zona Torvaianica - 64f3c5a8.

Analisi immobiliare
I dati in posseso di Caasa per quest'immobile sono insufficienti, inaffidabili o contraddittori per proporre un'analisi attendibile.
Mercato immobiliare a Pomezia
Per quanto riguarda più in generale la città di Pomezia, sono presenti al momento circa mille annunci per case indipendenti in vendita (meno del 5% dell'intera provincia) e il maggior numero di annunci per questa tipologia sono relativi proprio alla zona di Torvaianica.
La richiesta media nella zona dove sorge la casa indipendente (Torvaianica) è pari a 2.065 €/m², molto vicina ai valori della zona Colli di Enea che sono i più alti della città .
Per quanto riguarda la dinamica dei prezzi, negli ultimi 6 mesi i prezzi medi in tutta la città per case indipendenti in vendita sono in sostanziale aumento (+6,07%).

NOVITÀ Il risultato che vedi dipende dai dati che siamo riusciti ad estrarre dall'annuncio: ottieni una stima più accuranta di questo immobile, inserendo dati più precisi.

N.B. L'Opinione di Caasa® è un servizio sperimentale realizzato tramite tecniche di Intelligenza Artificiale, fornito senza alcuna garanzia di correttezza e completezza. Leggi il disclaimer o segnalaci un problema.

IMMAGINI

IN SINTESI

Prezzo:
295.000 €
Superficie:
60 m²
Prezzo al m²:
4916 €/m²
Piano:
n.d.
Bagni:
2
Classe energetica:
n.d.
Città:
Pomezia (RM)
Zona OMI:
E1 (TORVAIANICA)
Indirizzo:
Pubblicato:
ven 17 ottobre 2025

PROPOSTO DA:

Midas immobiliare srls

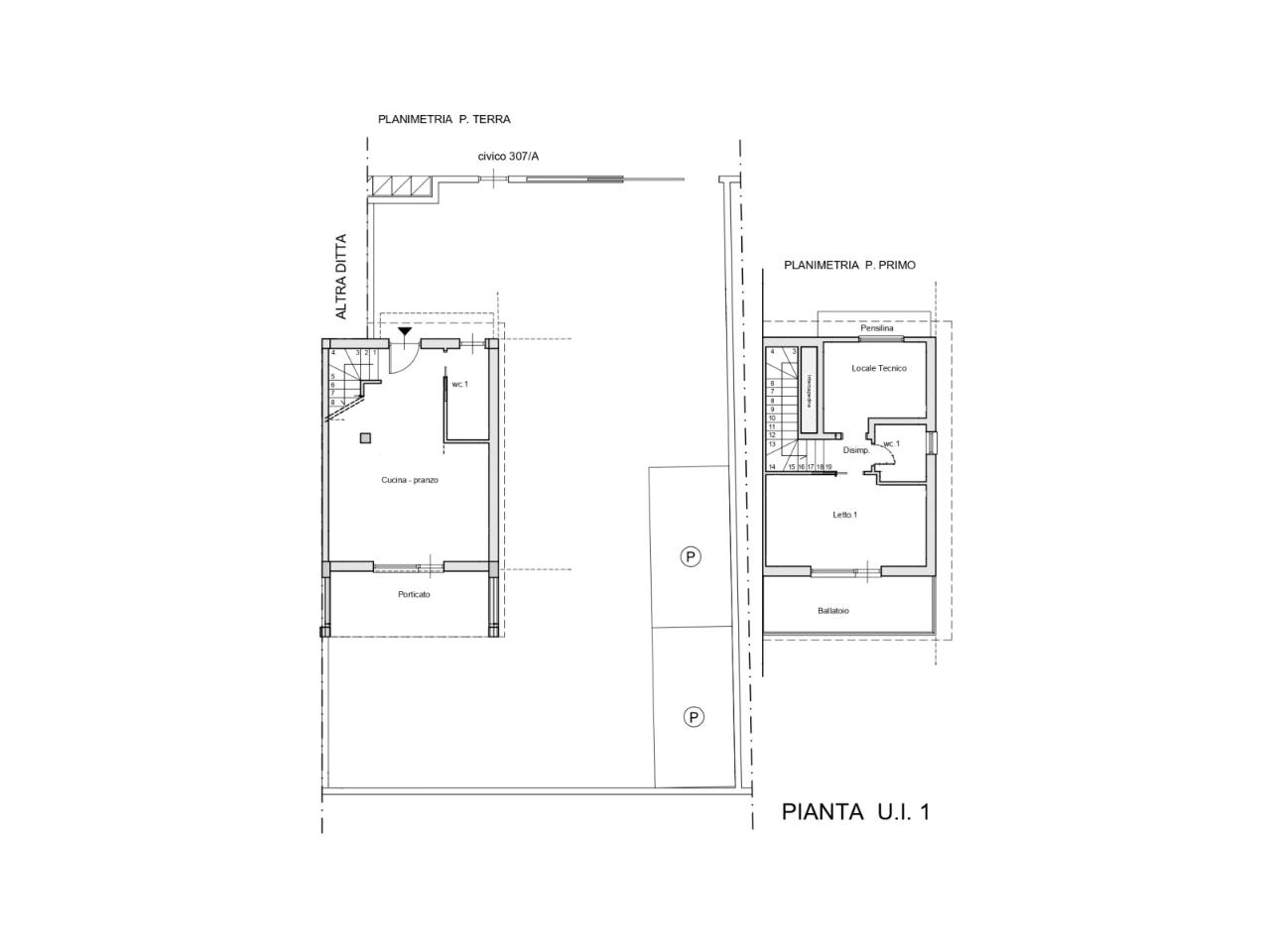
DESCRIZIONE

con posto auto con terrazza con balcone con giardino con termocondizionamento

TORVAIANICA : Edificato in un contesto residenziale DIRETTAMENTE SUL MARE la nostra agenzia affiliata Replat propone la costruzione di 3 villini a schiera di alto elevato comfort abitativo. I villini si sviluppano su due livelli, al piano terra zona […]

  • wikicasa.free