Valutazione immobiliare indipendente, accurata e gratuita
Villa in vendita a Pomezia in zona Torvaianica a 159.000 € (cod.64b1f981)
Caasa non ha sufficienti informazioni per commentare la villa in vendita a Pomezia in zona Torvaianica - 64b1f981.
Analisi immobiliare
I dati in posseso di Caasa per quest'immobile sono insufficienti, inaffidabili o contraddittori per proporre un'analisi attendibile.
Mercato immobiliare a Pomezia
Per quanto riguarda più in generale la città di Pomezia, sono presenti al momento quasi 500 annunci per
ville in vendita (meno del 5% dell'intera provincia)
e il maggior numero di annunci per questa tipologia sono relativi proprio alla zona di Torvaianica.
La richiesta media nella zona dove sorge la villa (Torvaianica pressi Via Fiume) è pari a
1.985 €/m², molto vicina ai valori della zona Colli di Enea che sono i più alti della città .
Relativamente alla dinamica dei prezzi, possiamo dire che negli ultimi 6 mesi i prezzi medi in tutta la città per ville in vendita sono
sostanzialmente stabili (-0,15%).
NOVITÀ Il risultato che vedi dipende dai dati che siamo riusciti ad estrarre dall'annuncio: ottieni una stima più accuranta di questo immobile, inserendo dati più precisi.
N.B. L'Opinione di Caasa® è un servizio sperimentale realizzato tramite tecniche di Intelligenza Artificiale, fornito senza alcuna garanzia di correttezza e completezza. Leggi il disclaimer o segnalaci un problema.
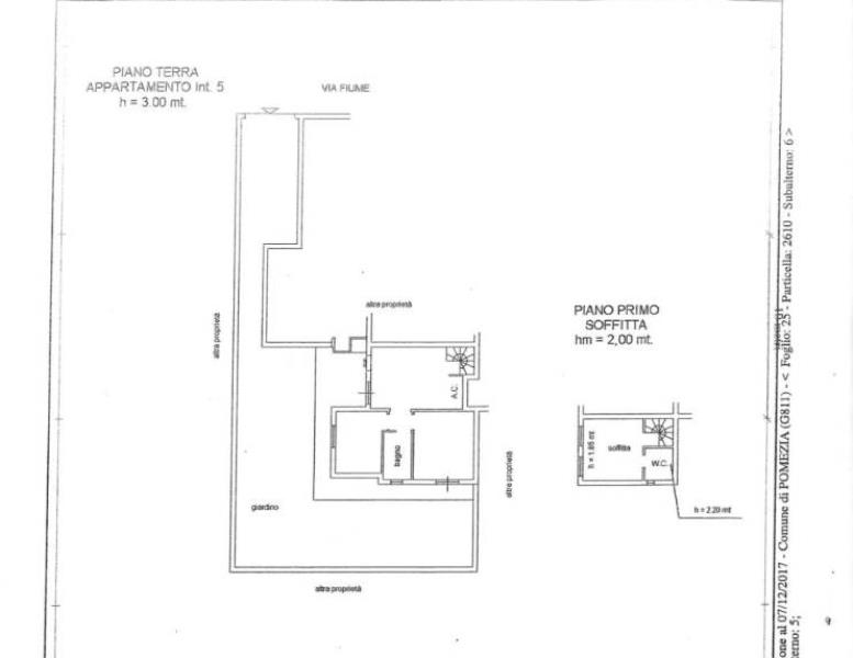
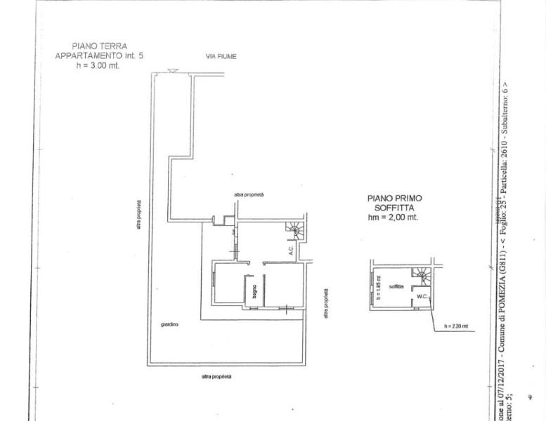
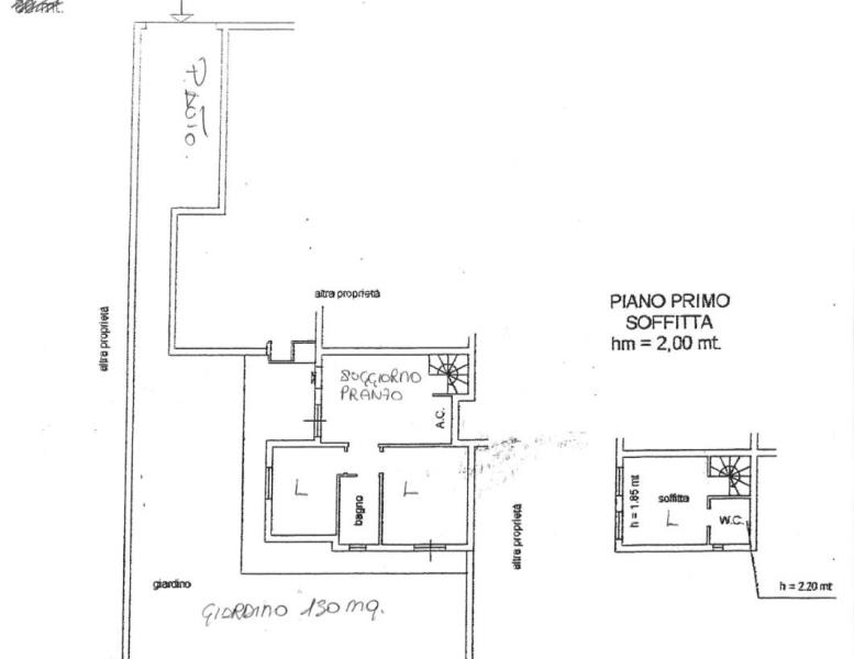
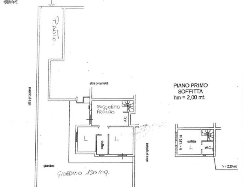
IMMAGINI
IN SINTESI
DESCRIZIONE
di recente ristrutturazione con posto auto con giardino di recente ristrutturazione con angolo cottura di recente costruzione
Torvaianica, via Fiume , nelle immediate vicinanze del mare e Zoomarine , in contesto tranquillo e servito di tutti i servizi , si propone la vendita di un villino a schiera di testa con ampio giardino angolare di 130 mq con posto auto scoperto inter […]
