Valutazione immobiliare indipendente, accurata e gratuita
Locale commerciale in affitto a Palestrina a 3.500 € mese (cod.6590367c)
Caasa non ha sufficienti informazioni per commentare il locale commerciale in affitto a Palestrina - 6590367c.
Analisi immobiliare
I dati in posseso di Caasa per quest'immobile sono insufficienti, inaffidabili o contraddittori per proporre un'analisi attendibile.
Mercato immobiliare a Palestrina
Per quanto riguarda più in generale la città di Palestrina, sono presenti al momento più di dieci annunci per
locali commerciali in affitto (meno dell'1% dell'intera provincia)
e il maggior numero di annunci per questa tipologia sono relativi alla zona di Carchitti.
NOVITÀ Il risultato che vedi dipende dai dati che siamo riusciti ad estrarre dall'annuncio: ottieni una stima più accuranta di questo immobile, inserendo dati più precisi.
N.B. L'Opinione di Caasa® è un servizio sperimentale realizzato tramite tecniche di Intelligenza Artificiale, fornito senza alcuna garanzia di correttezza e completezza. Leggi il disclaimer o segnalaci un problema.
IMMAGINI
IN SINTESI
DESCRIZIONE
da ristrutturare con posto auto da ristrutturare
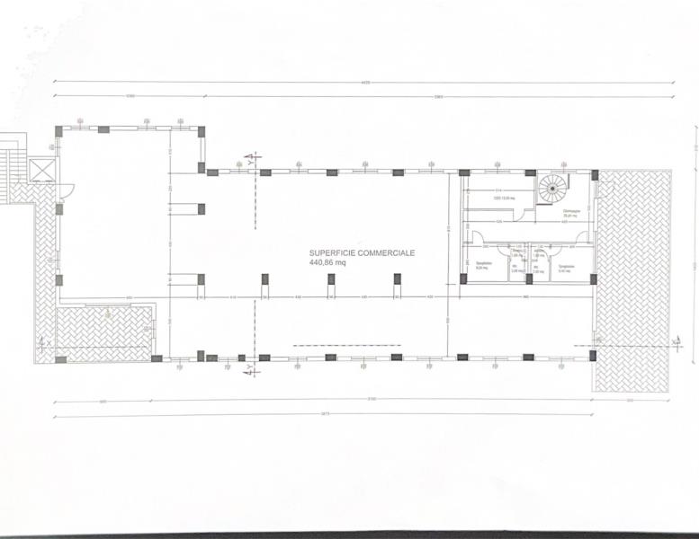
PALESTRINA- (Affittasi) Pedemontana, in posizione centralissima e servita, locale commerciale al piano primo finestratissimo, nuova realizzazione mq.440 c. frazionabile, con annesso ampio parcheggio. Ideale anche uso : uffici direzionali e co working, sale meeting, scuola professionale, centro estetico e benessere, centro medico e diagnostico, palestra personal trainer, arti marziali, boxe, danza, scuola di ballo, scuola paritaria, centro servizi integrati . PREZZO SU RICHIESTA Cod.4004

