Valutazione immobiliare indipendente, accurata e gratuita
Appartamento in vendita a Monte Porzio Catone a 240.000 € (cod.65037d5b)
Caasa non ha sufficienti informazioni per commentare l'appartamento in vendita a Monte Porzio Catone - 65037d5b.
Analisi immobiliare
I dati in posseso di Caasa per quest'immobile sono insufficienti, inaffidabili o contraddittori per proporre un'analisi attendibile.
Mercato immobiliare a Monte Porzio Catone
Per quanto riguarda più in generale il comune di Monte Porzio Catone, sono presenti al momento più di cento annunci per
appartamenti in vendita (meno dell'1% dell'intera provincia) .
La dinamica dei prezzi in tutto il comune mostra che negli ultimi 6 mesi, i prezzi per appartamenti in vendita sono
in forte aumento (+10,11%).
NOVITÀ Il risultato che vedi dipende dai dati che siamo riusciti ad estrarre dall'annuncio: ottieni una stima più accuranta di questo immobile, inserendo dati più precisi.
N.B. L'Opinione di Caasa® è un servizio sperimentale realizzato tramite tecniche di Intelligenza Artificiale, fornito senza alcuna garanzia di correttezza e completezza. Leggi il disclaimer o segnalaci un problema.
IMMAGINI
IN SINTESI
PROPOSTO DA:
STUDIO CANOVA immobili & crediti
DESCRIZIONE
di recente costruzione con terrazza con balcone con cantina di recente costruzione con angolo cottura in asta giudiziaria
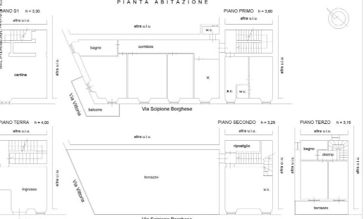
NUOVA PROPOSTA Trattasi di un appartamento nel comune di Monte Porzio Catone RM,in via Scipione Borghese Appartamento sviluppantesi ai piani seminterrato, terra, primo, secondo e terzo, collegati tra loro tramite scala interna. L’unità immobiliare risulta composta da: Al piano terra, un soggiorno con angolo cottura, bagno e camera da letto, una cucina, due camere da letto, soggiorno, due bagni e balcone; ripostiglio, al piano secondo,terrazzo e Soggiorno con angolo cottura, disimpegno, bagno, al piano terzo due camere da letto e terrazzo. Cantina al piano interrato. Questo immobile offre spazi funzionali e accoglienti per godere appieno di una vita confortevole e rilassante. Per te la possibilità di avere un preventivo per il mutuo a condizioni vantaggiose con i nostri partner. Ulteriori dettagli, foto degli interni, planimetrie e altre info, se disponibili, saranno consultabili previo appuntamento nella sede di ROMA con MICHELE che inoltre ti informerà sulle possibilità di aggiudicarti questo affare. L'immobile pubblicato al momento è sottoposto a procedura di vendita legale; Gescom srl è specializzata nella ricerca e pianificazione di investimenti immobiliari secondo innovative strategie di acquisto. Contattaci subito potrai valutare assieme a un nostro tecnico canali distinti di acquisto dell’immobile, procedura di vendita diretta senza ricorrere all’asta (d.lgs. 149/2022) e ancora stralcio immobiliare. Le informazioni sopra riportate non sostituiscono l'avviso pubblicato dal Tribunale competente ne’ l'integrale gestione da parte del delegato designato. Il testo e le specifiche indicate nella presente pagina sono generate automaticamente attraverso l'utilizzo di software e/o da A. I., Gescom srl invita a verificare le formazioni e i materiali multimediali sui canali ufficiali, declinando fin d'ora ogni responsabilità su eventuali errori o incongruenze. Gescom Italia srl leader negli stralci immobiliari e nella consulenza tecnico legale, non si occupa di attività di intermediazione imm. di cui alla legg[…]







