Valutazione immobiliare indipendente, accurata e gratuita
Appartamento in vendita a Monte Compatri a 18.000 € (cod.64f6b793)
Caasa non ha sufficienti informazioni per commentare l'appartamento in vendita a Monte Compatri - 64f6b793.
Analisi immobiliare
I dati in posseso di Caasa per quest'immobile sono insufficienti, inaffidabili o contraddittori per proporre un'analisi attendibile.
Mercato immobiliare a Monte Compatri
Per quanto riguarda più in generale il comune di Monte Compatri, sono presenti al momento più di 200 annunci per
appartamenti in vendita (meno dell'1% dell'intera provincia)
e il maggior numero di annunci per questa tipologia sono relativi alla zona di Laghetto.
La dinamica dei prezzi in tutto il comune mostra che negli ultimi 6 mesi, i prezzi per appartamenti in vendita sono
in sostanziale aumento (+7,43%).
NOVITÀ Il risultato che vedi dipende dai dati che siamo riusciti ad estrarre dall'annuncio: ottieni una stima più accuranta di questo immobile, inserendo dati più precisi.
N.B. L'Opinione di Caasa® è un servizio sperimentale realizzato tramite tecniche di Intelligenza Artificiale, fornito senza alcuna garanzia di correttezza e completezza. Leggi il disclaimer o segnalaci un problema.
IMMAGINI
IN SINTESI
PROPOSTO DA:
STUDIO CANOVA immobili & crediti
DESCRIZIONE
di recente costruzione con balcone con cantina di recente costruzione in asta giudiziaria
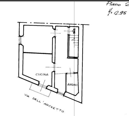
NUOVA PROPOSTA IMMOBILE DISPONIBILE Appartamento a Monte Compatri (RM) Via dell'Archetto. Unità situata al secondo piano di un edificio residenziale in centro storico. Entrando dal portone principale dell'edificio si accede ad una scala che porta al piano secondo dove troviamo l'ingresso all'abitazione da un pianerottolo comune. Entrando nell'unità si attraversa un disimpegno, di seguito si entra in un unico grande ambiente composto da cucina e soggiorno/pranzo, il tutto illuminato da una finestra e un porta finestra con un balconcino che affaccia su Via dell'Archetto. Un corridoio porta ad un ripostiglio e un bagno. Nel corridoio è presente una scala che porta al piano sottotetto dove troviamo due camere. Questo immobile si trova in una zona tranquilla, poco distante dalle principali vie di comunicazione locali. Per te la possibilità di avere un preventivo per il mutuo a condizioni vantaggiose con i nostri partner. Ulteriori dettagli, foto degli interni, planimetrie e altre info, se disponibili, saranno consultabili previo appuntamento nella sede di ROMA con MICHELE inoltre ti informerà sulle possibilità di aggiudicarti questo affare. L'immobile pubblicato al momento è sottoposto a procedura di vendita legale; Gescom srl è specializzata nella ricerca e pianificazione di investimenti immobiliari secondo innovative strategie di acquisto. Contattaci subito potrai valutare assieme a un nostro tecnico canali distinti di acquisto dell’immobile, procedura di vendita diretta senza ricorrere all’asta (d.lgs. 149/2022) e ancora stralcio immobiliare. Le informazioni sopra riportate non sostituiscono l'avviso pubblicato dal Tribunale competente ne’ l'integrale gestione da parte del delegato designato. Il testo e le specifiche indicate nella presente pagina sono generate automaticamente attraverso l'utilizzo di software e/o da A. I., Gescom srl invita a verificare le formazioni e i materiali multimediali sui canali ufficiali, declinando fin d'ora ogni responsabilità su eventuali errori o incongruenze. Gescom Italia s[…]



