Valutazione immobiliare indipendente, accurata e gratuita

Appartamento in vendita a Monte Compatri in zona Laghetto a 96.112 € (cod.64f0d4a7)

Caasa non ha sufficienti informazioni per commentare l'appartamento a Monte Compatri in zona Laghetto - 64f0d4a7.

Analisi immobiliare
I dati in posseso di Caasa per quest'immobile sono insufficienti, inaffidabili o contraddittori per proporre un'analisi attendibile.
Mercato immobiliare a Monte Compatri
Per quanto riguarda più in generale il comune di Monte Compatri, sono presenti al momento più di 200 annunci per appartamenti in vendita (meno dell'1% dell'intera provincia) e il maggior numero di annunci per questa tipologia sono relativi proprio alla zona di Laghetto.
Per quanto riguarda la richiesta media in zona Laghetto, dove sorge l'appartamento, essa è pari a circa 1.955 €/m² per appartamenti in vendita.
La dinamica dei prezzi in tutto il comune mostra che negli ultimi 6 mesi, i prezzi per appartamenti in vendita sono in sostanziale aumento (+7,43%).

NOVITÀ Il risultato che vedi dipende dai dati che siamo riusciti ad estrarre dall'annuncio: ottieni una stima più accuranta di questo immobile, inserendo dati più precisi.

N.B. L'Opinione di Caasa® è un servizio sperimentale realizzato tramite tecniche di Intelligenza Artificiale, fornito senza alcuna garanzia di correttezza e completezza. Leggi il disclaimer o segnalaci un problema.

IMMAGINI

IN SINTESI

Prezzo:
96.112 €
Superficie:
49 m²
Prezzo al m²:
1961 €/m²
Piano:
terra
Bagni:
1
Classe energetica:
n.d.
Città:
Monte Compatri (RM)
Zona OMI:
E4 (PANTANO-LAGHETTO-S.MARIA)
Indirizzo:
Pubblicato:
mer 15 ottobre 2025

PROPOSTO DA:

STUDIO CANOVA immobili & crediti

DESCRIZIONE

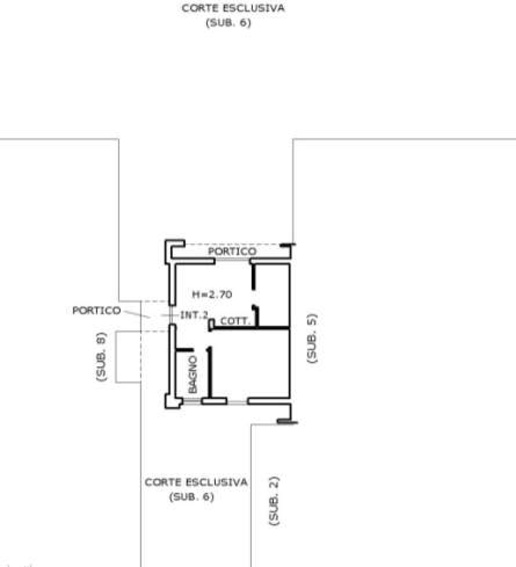
con posto auto con cantina con angolo cottura in asta giudiziaria

NUOVA PROPOSTA IMMOBILE DISPONIBILE Appartamento a Monte Compatri (RM) in Via Santa Maria. L'immobile è situato al piano terra ed è cosi composto: salone con angolo cottura, camera, bagno, ripostiglio e corte esterna; sono presenti anche un locale ca […]

  • yescasa.it