Valutazione immobiliare indipendente, accurata e gratuita
Appartamento in vendita a Marino a 80.000 € (cod.65213565)
Caasa non ha sufficienti informazioni per commentare l'appartamento in vendita a Marino - 65213565.
Analisi immobiliare
I dati in posseso di Caasa per quest'immobile sono insufficienti, inaffidabili o contraddittori per proporre un'analisi attendibile.
Mercato immobiliare a Marino
Per quanto riguarda più in generale la città di Marino, sono presenti al momento oltre 500 annunci per
appartamenti in vendita (meno del 5% dell'intera provincia)
e il maggior numero di annunci per questa tipologia sono relativi alla zona di Santa Maria delle Mole.
Relativamente alla dinamica dei prezzi, possiamo dire che negli ultimi 6 mesi i prezzi medi in tutta la città per appartamenti in vendita sono
in leggero aumento (+2,38%).
NOVITÀ Il risultato che vedi dipende dai dati che siamo riusciti ad estrarre dall'annuncio: ottieni una stima più accuranta di questo immobile, inserendo dati più precisi.
N.B. L'Opinione di Caasa® è un servizio sperimentale realizzato tramite tecniche di Intelligenza Artificiale, fornito senza alcuna garanzia di correttezza e completezza. Leggi il disclaimer o segnalaci un problema.
IMMAGINI
IN SINTESI
PROPOSTO DA:
Gabetti - Marino Centro
DESCRIZIONE
da ristrutturare da ristrutturare
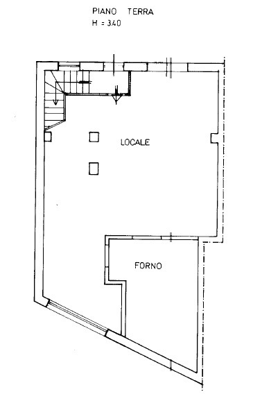
Situato nel comune di Marino (RM), in via Forni di SantAntonio da Padova, nel cuore del caratteristico centro storico, proponiamo in vendita un magazzino ad uso commerciale C/3. Con una superficie totale di 170 mq di h 3,60 la soluzione la fusione di due locali c/3 con bagno. Lo stato dell'edificio da ristrutturare, offrendo ampie possibilit di personalizzazione e adattamento alle esigenze del futuro acquirente. L'occupazione dell'immobile attualmente libera, consentendo un rapido insediamento per attivit commerciali di vario genere. Marino una localit che garantisce un ottimo potenziale di clientela per qualsiasi attivit commerciale si desideri avviare. L'immobile si trova in una zona ben servita da mezzi pubblici e con facile accesso alle principali vie di comunicazione. euro 80.000 - SC9511866


