Valutazione immobiliare indipendente, accurata e gratuita
Appartamento in vendita a Marino in zona Cava dei Selci a 132.500 € (cod.65037cf8)
Caasa non ha sufficienti informazioni per commentare l'appartamento a Marino in zona Cava dei Selci - 65037cf8.
Analisi immobiliare
I dati in posseso di Caasa per quest'immobile sono insufficienti, inaffidabili o contraddittori per proporre un'analisi attendibile.
Mercato immobiliare a Marino
Per quanto riguarda più in generale la città di Marino, sono presenti al momento oltre 500 annunci per
appartamenti in vendita (meno del 5% dell'intera provincia)
e il maggior numero di annunci per questa tipologia sono relativi alla zona di Santa Maria delle Mole, mentre nella zona di Cava dei Selci è presente un numero significativamente inferiore di annunci.
La richiesta media nella zona dove sorge l'appartamento (Cava dei Selci pressi Via del Sassone) è pari a
2.390 €/m², molto vicina ai valori della zona Santa Maria delle Mole che sono i più alti della città .
Per quanto riguarda la dinamica dei prezzi, negli ultimi 6 mesi i prezzi medi in tutta la città per appartamenti in vendita sono
in leggero aumento (+2,38%).
NOVITÀ Il risultato che vedi dipende dai dati che siamo riusciti ad estrarre dall'annuncio: ottieni una stima più accuranta di questo immobile, inserendo dati più precisi.
N.B. L'Opinione di Caasa® è un servizio sperimentale realizzato tramite tecniche di Intelligenza Artificiale, fornito senza alcuna garanzia di correttezza e completezza. Leggi il disclaimer o segnalaci un problema.
IMMAGINI
IN SINTESI
PROPOSTO DA:
Studio Mi.Eli.
Via del Mare, 2/d, Pomezia (RM)
Verificata da Caasa®
DESCRIZIONE
con terrazza in asta giudiziaria
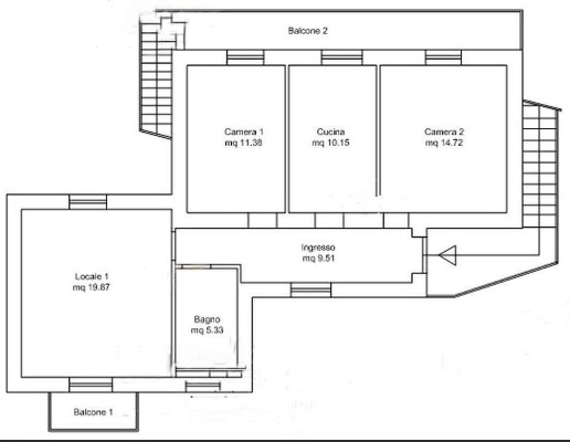
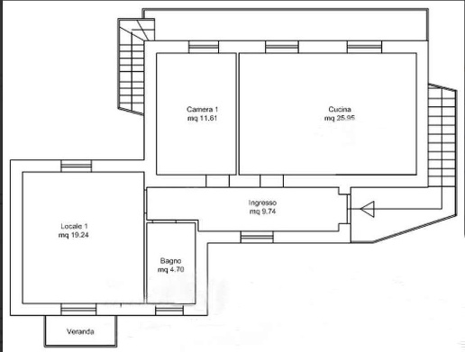
Appartamento di mq 95 e Magazzino di 40 mq con terrazzo a Marino (RM) in Via del Sassone, 103 posti al Piano Primo e Piano Sottotetto. L'immobile è composto da ingresso, camera, bagno, grande cucina e soggiorno. All'interno pavimenti in ceramica di colore vario e porte in legno tamburato. Il Magazzino è diviso tra soffitta di mq 40 e terrazzo di mq 43. Il tutto in mediocre stato di conservazione come riportato sulla CTU visionabile presso lo Studio. L'immobile viene venduto tramite vendita giudiziaria con l’assistenza legale dello Studio e il prezzo indicato si riferisce all’offerta minima. POSSIBILITÀ' DI ACQUISTO IN PRE-ASTA . OFFERTA MINIMA € 132.500,00 Valore perizia CTU € 176.500,00 Studio Mi.Eli. and Associates ltd POMEZIA (RM) Tel. 06/83778285 Cell. 340/5355446 Studio Mi.Eli. è uno Studio Legale costituito da un gruppo di professionisti del settore legale e immobiliare che da anni credono che il mercato delle aste immobiliari sia un’alternativa forte, concreta e conveniente rispetto all’acquisto sul mercato libero. Nasciamo con l’intento di promuovere una particolare tipologia di acquisto, sfatando idee e preconcetti che spesso hanno accompagnato le vendite immobiliari all’asta. Il nostro scopo è promuovere un mercato ritenuto ancora oggi riservato a pochi, facendone conoscere le grandi potenzialità. Riteniamo che le aste immobiliari siano un’opportunità concreta per tutti e per questo motivo la nostra consulenza mira a semplificare al massimo tutte le procedure operative e burocratiche, garantendo trasparenza e certezza riguardo ciò che si acquista. Tutto questo grazie alla consulenza tecnica, giuridica e commerciale dei nostri esperti. Con un primo incontro conoscitivo potremo valutare insieme la reale possibilità di riuscire a soddisfare le Vostre esigenze. I nostri consulenti sono a disposizione per accompagnare il cliente dalla ricerca dell'immobile fino alla consegna delle chiavi, compreso l'eventuale assistenza per l'ottenimento di un mutuo. Studio Mi.Eli. and Associates ltd POMEZIA (RM) Tel[…]


