Valutazione immobiliare indipendente, accurata e gratuita

Appartamento in vendita a Ladispoli a 38.667 € (cod.64ee8218)

Caasa non ha sufficienti informazioni per commentare l'appartamento in vendita a Ladispoli - 64ee8218.

Analisi immobiliare
I dati in posseso di Caasa per quest'immobile sono insufficienti, inaffidabili o contraddittori per proporre un'analisi attendibile.
Mercato immobiliare a Ladispoli
Per quanto riguarda più in generale la città di Ladispoli, sono presenti al momento oltre 500 annunci per appartamenti in vendita (meno del 5% dell'intera provincia) e il maggior numero di annunci per questa tipologia sono relativi alla zona di Marina di San Nicola.

Per quanto riguarda la dinamica dei prezzi, negli ultimi 6 mesi i prezzi medi in tutta la città per appartamenti in vendita sono in forte aumento (+10,13%).

NOVITÀ Il risultato che vedi dipende dai dati che siamo riusciti ad estrarre dall'annuncio: ottieni una stima più accuranta di questo immobile, inserendo dati più precisi.

N.B. L'Opinione di Caasa® è un servizio sperimentale realizzato tramite tecniche di Intelligenza Artificiale, fornito senza alcuna garanzia di correttezza e completezza. Leggi il disclaimer o segnalaci un problema.

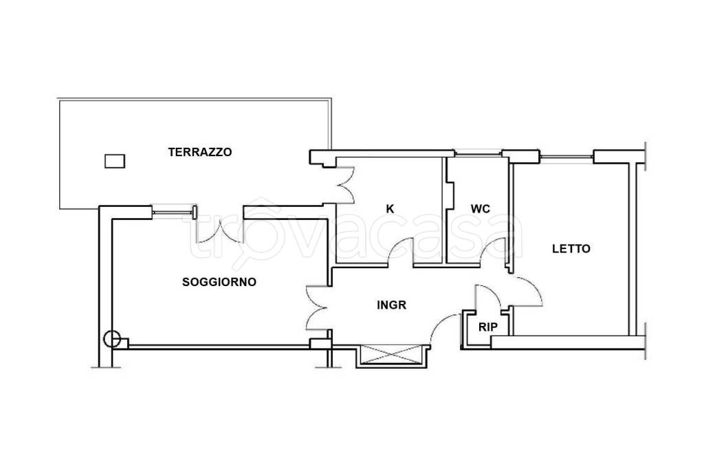
IMMAGINI

IN SINTESI

Prezzo:
38.667 €
Superficie:
77 m²
Prezzo al m²:
502 €/m²
Piano:
(con ascensore)
Bagni:
n.d.
Classe energetica:
n.d.
Città:
Ladispoli (RM)
Zona OMI:
B1 (CENTRO URBANO)
Indirizzo:
Pubblicato:
gio 9 ottobre 2025

PROPOSTO DA:

Quimmo

DESCRIZIONE

con terrazza con termocondizionamento con cantina con ascensore con riscaldamento autonomo in asta giudiziaria

Ti interessa questo immobile? Noi ci occupiamo della vendita di alcune quote e non dell’intera proprietà. Acquistando questa quota, infatti, si diventa co-proprietari dell’immobile insieme ad altre persone che detengono altre quote dello stesso immob […]

  • trovacasa.net