Valutazione immobiliare indipendente, accurata e gratuita
Appartamento in vendita a Labico a 40.087 € (cod.65037d67)
Caasa non ha sufficienti informazioni per commentare l'appartamento in vendita a Labico - 65037d67.
Analisi immobiliare
I dati in posseso di Caasa per quest'immobile sono insufficienti, inaffidabili o contraddittori per proporre un'analisi attendibile.
Mercato immobiliare a Labico
Per quanto riguarda più in generale il comune di Labico, sono presenti al momento più di cento annunci per
appartamenti in vendita (meno dell'1% dell'intera provincia)
e il maggior numero di annunci per questa tipologia sono relativi alla zona di Colle Spina.
La dinamica dei prezzi in tutto il comune mostra che negli ultimi 6 mesi, i prezzi per appartamenti in vendita sono
in deciso aumento (+8,03%).
NOVITÀ Il risultato che vedi dipende dai dati che siamo riusciti ad estrarre dall'annuncio: ottieni una stima più accuranta di questo immobile, inserendo dati più precisi.
N.B. L'Opinione di Caasa® è un servizio sperimentale realizzato tramite tecniche di Intelligenza Artificiale, fornito senza alcuna garanzia di correttezza e completezza. Leggi il disclaimer o segnalaci un problema.
IMMAGINI
IN SINTESI
PROPOSTO DA:
STUDIO CANOVA immobili & crediti
DESCRIZIONE
di recente costruzione con balcone di recente costruzione con cantina in asta giudiziaria
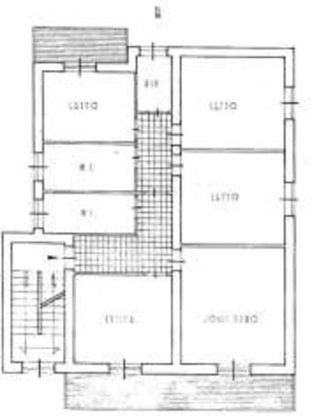
NUOVA PROPOSTA IMMOBILE DISPONIBILE Trattasi di un appartamento a Labico (RM) in Via Sandro Pertini. L’immobile si trova al primo piano ed è composto da ingresso, soggiorno-pranzo, cucina, ripostiglio, corridoio, tre camere, due bagni e due balconi. L'immobile è situato in una zona molto tranquilla, permette di godere di tutti i comfort e i servizi offerti dalla zona circostante. Per te la possibilità di avere un preventivo per il mutuo a condizioni vantaggiose con i nostri partner. Ulteriori dettagli, foto degli interni, planimetrie e altre info, se disponibili, saranno consultabili previo appuntamento nella sede di ROMA con MICHELE che inoltre ti informerà sulle possibilità di aggiudicarti questo affare. L'immobile pubblicato al momento è sottoposto a procedura di vendita legale; Gescom srl è specializzata nella ricerca e pianificazione di investimenti immobiliari secondo innovative strategie di acquisto. Contattaci subito potrai valutare assieme a un nostro tecnico canali distinti di acquisto dell’immobile, procedura di vendita diretta senza ricorrere all’asta (d.lgs. 149/2022) e ancora stralcio immobiliare. Le informazioni sopra riportate non sostituiscono l'avviso pubblicato dal Tribunale competente ne’ l'integrale gestione da parte del delegato designato. Il testo e le specifiche indicate nella presente pagina sono generate automaticamente attraverso l'utilizzo di software e/o da A. I., Gescom srl invita a verificare le formazioni e i materiali multimediali sui canali ufficiali, declinando fin d'ora ogni responsabilità su eventuali errori o incongruenze. Gescom Italia srl leader negli stralci immobiliari e nella consulenza tecnico legale, non si occupa di attività di intermediazione imm. di cui alla legge 39/89. Cl. energ. da verificare. Le foto pubblicate nel presente annuncio sono indicative e non esaustive della tipologia, qualità, consistenza e indicazione geografica dell'immobile







