Valutazione immobiliare indipendente, accurata e gratuita
Appartamento in vendita a Guidonia Montecelio in zona Villalba a 80.850 € (cod.65069487)
Caasa non ha sufficienti informazioni per commentare l'appartamento a Guidonia Montecelio in zona Villalba - 65069487.
Analisi immobiliare
I dati in posseso di Caasa per quest'immobile sono insufficienti, inaffidabili o contraddittori per proporre un'analisi attendibile.
Mercato immobiliare a Guidonia Montecelio
Per quanto riguarda più in generale la città di Guidonia Montecelio, sono presenti al momento ben oltre mille annunci per
appartamenti in vendita (meno del 5% dell'intera provincia)
e il maggior numero di annunci per questa tipologia sono relativi alla zona di Guidonia, mentre nella zona di Villalba è presente un numero significativamente inferiore di annunci.
La richiesta media nella zona dove sorge l'appartamento (Villalba) è pari a
1.845 €/m², molto vicina ai valori della zona Setteville che sono i più alti della città .
La dinamica dei prezzi in tutta la città mostra che negli ultimi 6 mesi, i prezzi per appartamenti in vendita sono
in sostanziale aumento (+7,49%).
NOVITÀ Il risultato che vedi dipende dai dati che siamo riusciti ad estrarre dall'annuncio: ottieni una stima più accuranta di questo immobile, inserendo dati più precisi.
N.B. L'Opinione di Caasa® è un servizio sperimentale realizzato tramite tecniche di Intelligenza Artificiale, fornito senza alcuna garanzia di correttezza e completezza. Leggi il disclaimer o segnalaci un problema.
IMMAGINI
IN SINTESI
PROPOSTO DA:
Des Immobiliare S.R.L.
DESCRIZIONE
con terrazza con balcone con angolo cottura in asta giudiziaria con caminetto senza ascensore
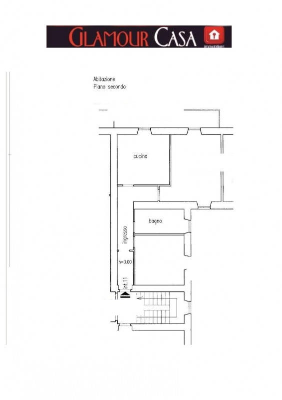
1/1 del diritto di proprietà appartamento in Guidonia Montecelio (Rm) via Liguria, piano 2 composto da soggiorno, pranzo, con angolo cottura e caminetto, un corridoio di disimpegno, due camere da letto, un bagno ed un balcone con accesso dalle camere da letto dove è posta esternamente la caldaia per complessivi mq. 82,00 circa. € 107.800,00 Offerta minima € 80.850,00 Lo Studio offre i seguenti servizi: - Approfondimento sulle tematiche giuridiche riguardanti le modalità di acquisto di un immobile tramite vendita giudiziaria; - Attivazione Firma digitale e Pec - Esame della perizia e di ogni altro documento accessorio; - Verifica fattibilità e rilascio voucher per l'erogazione del mutuo (anche 100%) tramite primari istituti bancari; - Richiesta e prenotazione della visita dell'immobile tramite custode giudiziario delegato; - Partecipazione in asta sia fisica che telematica. 1/1 of the property rights apartment in Guidonia Montecelio (Rm) via Liguria, floor 2 consisting of a living room, lunch, kitchenette and fireplace, a hallway, two bedrooms, a bathroom and a balcony with access from the bedrooms where the boiler is located externally for a total of approximately 82.00 m2. € 107,800.00 Minimum bid € 80,850.00 The Studio offers the following services: - In-depth analysis of legal issues regarding the methods of purchasing a property through judicial sale; - Activation Digital Signature and Pec - Examination of the expert report and any other ancillary documents; - Verify feasibility and issue vouchers for mortgage disbursement (up to 100%) via primary banking institutions; - Request and reservation of the visit to the property through a delegated judicial custodian; - Participation in both physical and electronic auction




