Valutazione immobiliare indipendente, accurata e gratuita

L'Opinione di Caasa® per la villa in vendita a Grottaferrata a 3.200.000 € (cod.64e8704a)

Secondo Caasa, per la villa in vendita a Grottaferrata, la richiesta di 3.200.000 € è leggermente vantaggiosa rispetto agli annunci simili.

Analisi immobiliare
La villa, situata nei pressi di Via Anagnina nella zona OMI D1, è proposta in vendita a 3.200.000 € per una superficie commerciale di 1100 m² e quindi ad un prezzo per metro quadrato pari a 2909 €/m² .
Questo prezzo è di poco inferiore a quello stimato da Caasa per immobili in vendita simili per tipologia, caratteristiche, classe energetica e zona, che è compreso tra 2.958 €/m² e 3.229 €/m². Data la posizione della villa si sono utilizzati in raffronto i valori medi nelle zone limitrofe . Ad affinare la stima ha contribuito anche la classe energetica (E) oltre alla conoscenza dello stato dell'immobile (di recente ristrutturazione che però è in parte contraddittorio con la classe energetica). Per i motivi esposti è possibile ottenere un intervallo di valori accettabili per l'offerta relativamente limitato.

Mercato immobiliare a Grottaferrata
Per quanto riguarda più in generale la città di Grottaferrata, sono presenti al momento più di 300 annunci per ville in vendita (meno del 5% dell'intera provincia) .

Possiamo inoltre considerare che in tutta la città negli ultimi 6 mesi, i prezzi per ville in vendita sono in aumento (+4,68%).

NOVITÀ Il risultato che vedi dipende dai dati che siamo riusciti ad estrarre dall'annuncio: ottieni una stima più accuranta di questo immobile, inserendo dati più precisi.

N.B. L'Opinione di Caasa® è un servizio sperimentale realizzato tramite tecniche di Intelligenza Artificiale, fornito senza alcuna garanzia di correttezza e completezza. Leggi il disclaimer o segnalaci un problema.

IMMAGINI

IN SINTESI

Prezzo:
3.200.000 €
Superficie:
1100 m²
Prezzo al m²:
2909 €/m²
Piano:
n.d.
Bagni:
3
Classe energetica:
E
Città:
Grottaferrata (RM)
Zona OMI:
D1 (COLLE DELLE GINESTRE - COLLE DELLE STREGHE -CASAL MOLARA - MOLARA)
Indirizzo:
Pubblicato:
mar 29 aprile 2025

PROPOSTO DA:

V.R.CASE

DESCRIZIONE

di recente ristrutturazione con giardino con terrazza con balcone di recente ristrutturazione con caminetto

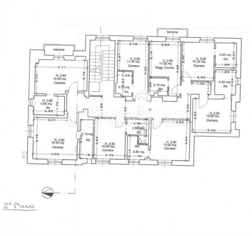
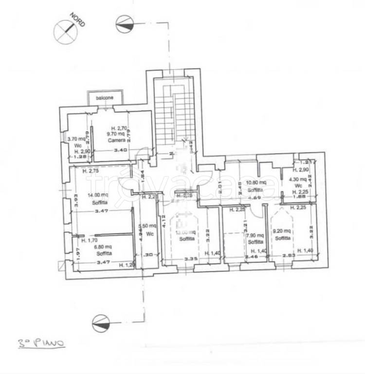
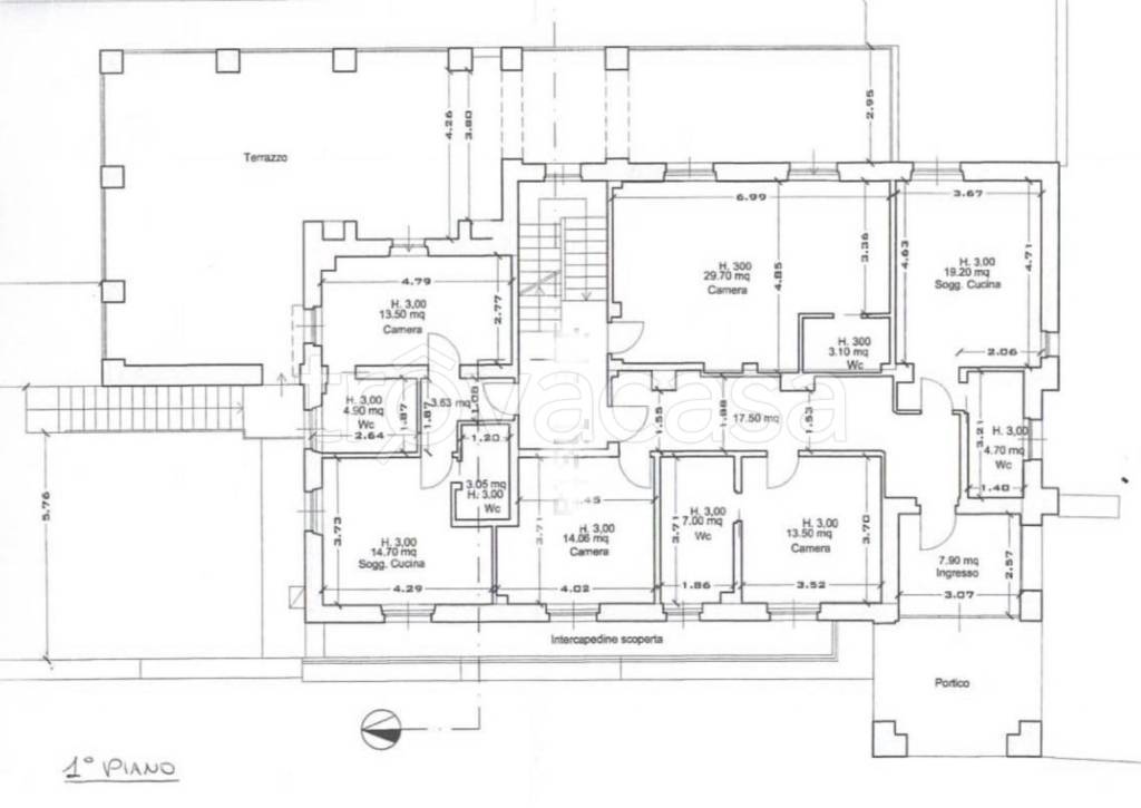
Grottaferrata Bassa Via Anagnina con panorama su Roma e mare, AR immobilia RE propone in vendita una Splendido Casale Unifamiliare di grande rappresentanza e ampia metratura completamente RISTRUTTURATA. La struttura di particolare importanza e stata progettata da un allievo dall'Architetto Le Corbusier , L' immobile si compone di una villa padronale e una dependance per il custode (o altre necessita') ed insiste su un lotto di terreno di 6000 metri quadri dove trovano posto una grande piscina, un frutteto, ampi spazi arredati co gazebo e mobili da esterno e un grande parcheggio per almeno trenta auto ampliabile. Al piano terra troviamo una ampia sala con camino, una palestra, una grande sala adibita a locale per feste, conferenze o altro, un ufficio, grande cucina attrezzata, ampia sala pranzo, bagno, lavanderia, dispensa, portico. Al primo pianoci sono sei camere doppie tutte con bagno in camera, grande terrazzo prendisole panoramicissimo. Al piano secondo abbiamo sei camere doppie, due camere singole, tutte con bagno in camera, disimpegno con armadi a muro, due balconi. Al piano terzo abbiamo quattro camere doppie, un soggiorno, tre bagni. Adiacente il corpo della villa abbiamo una dependance composta al piano terra da un grande ambiente a soggiorno e al primo piano una camera da letto con bagno. IL TUTTO COMPLETAMENTE ARREDATO. PISCINA DI 8 X 16 METRI RISCALDATA. UTILIZZABILE ANCHE PER CASA ALLOGGIO PER ANZIANI DI ALTO LIVELLO, COMUNITA' RELIGIOSE, ECC. Prezzo € 3.200.000,00 (DL 192 19/08/05). AR IMMOBILIA RE VIALE VITTORIO VENETO 17 FRASCATI Tel: 366/9443791 arimmobiliare2019@gmail.com

  • immobiliare.it
  • trovacasa.net