Valutazione immobiliare indipendente, accurata e gratuita
Locale commerciale in affitto a Genzano di Roma a 2.000 € mese (cod.65848e02)
Caasa non ha sufficienti informazioni per commentare il locale commerciale in affitto a Genzano di Roma - 65848e02.
Analisi immobiliare
I dati in posseso di Caasa per quest'immobile sono insufficienti, inaffidabili o contraddittori per proporre un'analisi attendibile.
Mercato immobiliare a Genzano di Roma
Per quanto riguarda più in generale la città di Genzano di Roma, sono presenti al momento più di venti annunci per
locali commerciali in affitto (meno dell'1% dell'intera provincia) .
Possiamo inoltre considerare che in tutta la città negli ultimi 6 mesi, i prezzi per locali commerciali in affitto sono
in forte aumento (+61,58%).
NOVITÀ Il risultato che vedi dipende dai dati che siamo riusciti ad estrarre dall'annuncio: ottieni una stima più accuranta di questo immobile, inserendo dati più precisi.
N.B. L'Opinione di Caasa® è un servizio sperimentale realizzato tramite tecniche di Intelligenza Artificiale, fornito senza alcuna garanzia di correttezza e completezza. Leggi il disclaimer o segnalaci un problema.
IMMAGINI
IN SINTESI
PROPOSTO DA:
AFFILIATO LA CASA AG - ALBANO LAZIALE - PONZO G.
Corso g. Matteotti 38, Albano Laziale (RM)
DESCRIZIONE
da ristrutturare da ristrutturare
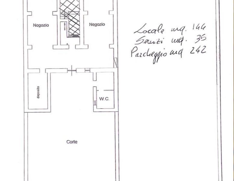
A ridosso di Corso Gramsci, con ingresso da Via Pizzicannella e da Via Ferrazza locale commerciale di mq 150 circa con servizi di mq 35 e corte esterna di mq 240. Il locale si presta anche per attività di ristorazione (Bistro'), vista la presenza di una canna fumaria. Si valuta anche la possibilità di acquisto


