Valutazione immobiliare indipendente, accurata e gratuita
Negozio in vendita a Frascati a 550.000 € (cod.65a0c7f1)
Caasa non ha sufficienti informazioni per commentare il negozio in vendita a Frascati - 65a0c7f1.
Analisi immobiliare
I dati in posseso di Caasa per quest'immobile sono insufficienti, inaffidabili o contraddittori per proporre un'analisi attendibile.
Mercato immobiliare a Frascati
Per quanto riguarda più in generale la città di Frascati, sono presenti al momento più di cento annunci per
negozi in vendita (meno dell'1% dell'intera provincia)
e il maggior numero di annunci per questa tipologia sono relativi alla zona di Prataporci.
Vedi altre informazioni direttamente su
Mercato-Immobiliare.info
NOVITÀ Il risultato che vedi dipende dai dati che siamo riusciti ad estrarre dall'annuncio: ottieni una stima più accuranta di questo immobile, inserendo dati più precisi.
N.B. L'Opinione di Caasa® è un servizio sperimentale realizzato tramite tecniche di Intelligenza Artificiale, fornito senza alcuna garanzia di correttezza e completezza. Leggi il disclaimer o segnalaci un problema.
IMMAGINI
IN SINTESI
PROPOSTO DA:
BELLADOMUS Immobiliare
Piazza San Benedetto da Norcia, 33, Pomezia (RM)
Verificata da Caasa®
DESCRIZIONE
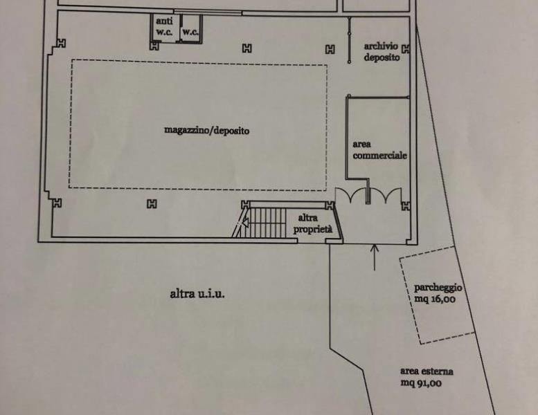
Locale Commerciale su strada di ampia metratura con corte esterna per parcheggio autovetture. L'immobile si sviluppa su un unico livello di cui mq 20 circa adibiti ad area commerciale per la vendita al dettaglio. Nella parte frontale in zona rialzata abbiamo un locale accatastato come archivio deposito ma ad uso ufficio, con accesso frontale e un altro accesso per il magazzino/deposito, con un servizio nella parte posteriore. Il magazzino ha un'altezza di 3,60 metri con scaffalature per i materiali, questa parte è stata abbassata e sanata per aggiungere circa 1 metro in più all'altezza del magazzino così da ampliare il locale di stoccaggio, la proprietà ha un totale di mq 280 circa. La posizione è ideale per qualsiasi attività commerciale. Il parcheggio esterno di mq 91 più un altro parcheggio di mq 16 si può verificare nel dettaglio tramite planimetria catastale allegata. Le foto sono puramente indicative e potrebbero non rispecchiare esattamente il fabbricato nel suo insieme

