Valutazione immobiliare indipendente, accurata e gratuita
Appartamento in vendita a Fonte Nuova in zona Santa Lucia a 140.000 € (cod.637de70a)
Caasa non ha sufficienti informazioni per commentare l'appartamento a Fonte Nuova in zona Santa Lucia - 637de70a.
Analisi immobiliare
I dati in posseso di Caasa per quest'immobile sono insufficienti, inaffidabili o contraddittori per proporre un'analisi attendibile.
Mercato immobiliare a Fonte Nuova
Per quanto riguarda più in generale la città di Fonte Nuova, sono presenti al momento oltre 500 annunci per
appartamenti in vendita (meno dell'1% dell'intera provincia)
e il maggior numero di annunci per questa tipologia sono relativi alla zona di Torre Lupara, mentre nella zona di Santa Lucia è presente un numero significativamente inferiore di annunci.
La richiesta media nella zona dove sorge l'appartamento (Santa Lucia pressi Via Palombarese) è pari a
1.955 €/m² che la rende la più economica della città .
Possiamo inoltre considerare che in tutta la città negli ultimi 6 mesi, i prezzi per appartamenti in vendita sono
in deciso aumento (+7,99%).
NOVITÀ Il risultato che vedi dipende dai dati che siamo riusciti ad estrarre dall'annuncio: ottieni una stima più accuranta di questo immobile, inserendo dati più precisi.
N.B. L'Opinione di Caasa® è un servizio sperimentale realizzato tramite tecniche di Intelligenza Artificiale, fornito senza alcuna garanzia di correttezza e completezza. Leggi il disclaimer o segnalaci un problema.
IMMAGINI
IN SINTESI
DESCRIZIONE
con giardino
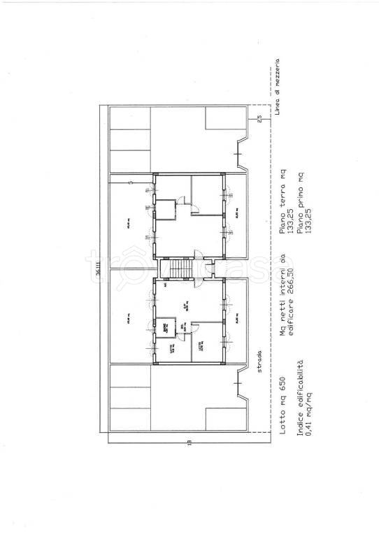
Fonte Nuova Santa Lucia, in via Palombarese 612/B, proponiamo in vendita un LOTTO DI TERRENO EDIFICABILE ad edificazione diretta idoneo per realizzare 4 APPARTAMENTI o 4 VILLINI BILIVELLI. Il lotto di Terreno si trova in zona residenziale, adiacente ad attività commerciali e servizi di trasporto. La superficie del terreno è di mq. 650. Prezzo di vendita Euro 140.000,00 Per qualsiasi informazione ed approfondimento su dati tecnici e quant'altro contattateci al 069050801 Vi forniremo tutte le indicazioni necessarie

