Valutazione immobiliare indipendente, accurata e gratuita
Casa indipendente in vendita a Fiumicino in zona Isola Sacra a 390.000 € (cod.65962542)
Caasa non ha sufficienti informazioni per commentare la casa indipendente a Fiumicino in zona Isola Sacra - 65962542.
Analisi immobiliare
I dati in posseso di Caasa per quest'immobile sono insufficienti, inaffidabili o contraddittori per proporre un'analisi attendibile.
Mercato immobiliare a Fiumicino
Per quanto riguarda più in generale la città di Fiumicino, sono presenti al momento ben circa mille annunci per
case indipendenti in vendita (meno del 5% dell'intera provincia)
e il maggior numero di annunci per questa tipologia sono relativi alla zona di Fregene, mentre nella zona di Isola Sacra è presente un numero significativamente inferiore di annunci.
La richiesta media nella zona dove sorge la casa indipendente (Isola Sacra pressi Via Angelo Siffredi) è pari a
2.600 €/m², molto vicina ai valori della zona Fregene che sono i più alti della città .
Possiamo inoltre considerare che in tutta la città negli ultimi 6 mesi, i prezzi per case indipendenti in vendita sono
in debole aumento (+2,24%).
NOVITÀ Il risultato che vedi dipende dai dati che siamo riusciti ad estrarre dall'annuncio: ottieni una stima più accuranta di questo immobile, inserendo dati più precisi.
N.B. L'Opinione di Caasa® è un servizio sperimentale realizzato tramite tecniche di Intelligenza Artificiale, fornito senza alcuna garanzia di correttezza e completezza. Leggi il disclaimer o segnalaci un problema.
IMMAGINI
IN SINTESI
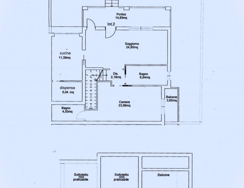
DESCRIZIONE
di nuova costruzione con posto auto con giardino con terrazza con balcone di nuova costruzione con termocondizionamento con climatizzazione
VILLE QUADRIFAMILIARI CON GIARDINO CONSEGNA PREVISTA GIUGNO 2027 Le unità immobiliari sarnno sviluppate su due livelli fuori terra quindi piano rialzato e primo piano, con una superficie commerciale di circa 120 mq interni oltre spazio esterno privato tra balconi, portici coperti e giardini. All'interno saranno cosi suddivise: Al piano rialzato ampio salone con possibilità di realizzare una cucina separata vivibile, oppure creare un grande open space tra salone e zona cucina. Nella zona notte ci sarà un bagno finestrato, una camera da letto matrimoniale con cabina armadio (possibilità di creare anche un bagno in camera al posto della cabina armadio). Al piano superiore da cui si accede tramite una comoda scala realizzata in pietra lavica dell'Etna, si accede ad altre due camere da letto di cui una con terrazzino, ed un altro bagno. All'esterno troviamo ampi spazi tra portici coperti e giardini semi pavimentati, con ingressi carrabili e pedonali. Gli impianti, con riscaldamento a terra, e split di aria condizionata, impianto fotovoltaico, grate ,porte interne di falegnameria, eleganti portoni blindati con vetro, finestre in pvc doppio vetro per un comfort ottimale tutto l'anno. La posizione è ideale per chi cerca la tranquillità ma allo stesso tempo una zona ben servita e ben collegata. Nelle vicinanze si trovano piccole attività commerciali, supermercati, scuole e parchi pubblici. Non perdere l'occasione di vivere in una casa che combina modernità ed efficienza energetica con la Prenota un appuntamento in sede per scoprire tutti i dettagli ed i progetti di questa straordinaria costruzione


