Valutazione immobiliare indipendente, accurata e gratuita
Appartamento in vendita a Fiumicino in zona Focene a 215.000 € (cod.658ad559)
Caasa non ha sufficienti informazioni per commentare l'appartamento in vendita a Fiumicino in zona Focene - 658ad559.
Analisi immobiliare
I dati in posseso di Caasa per quest'immobile sono insufficienti, inaffidabili o contraddittori per proporre un'analisi attendibile.
Mercato immobiliare a Fiumicino
Per quanto riguarda più in generale la città di Fiumicino, sono presenti al momento ben oltre mille annunci per
appartamenti in vendita (meno del 5% dell'intera provincia)
e il maggior numero di annunci per questa tipologia sono relativi alla zona di Isola Sacra, mentre la zona di Focene risulta molto meno attiva considerando il numero di annunci presenti.
La richiesta media nella zona dove sorge l'appartamento (Focene pressi Via dei Merluzzi) è pari a
2.695 €/m², molto vicina ai valori della zona Fregene che sono i più alti della città .
Relativamente alla dinamica dei prezzi, possiamo dire che negli ultimi 6 mesi i prezzi medi in tutta la città per appartamenti in vendita sono
sostanzialmente stabili (+0,46%).
NOVITÀ Il risultato che vedi dipende dai dati che siamo riusciti ad estrarre dall'annuncio: ottieni una stima più accuranta di questo immobile, inserendo dati più precisi.
N.B. L'Opinione di Caasa® è un servizio sperimentale realizzato tramite tecniche di Intelligenza Artificiale, fornito senza alcuna garanzia di correttezza e completezza. Leggi il disclaimer o segnalaci un problema.
IMMAGINI
IN SINTESI
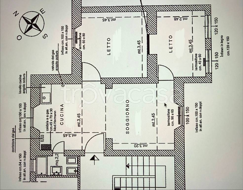
DESCRIZIONE
edificio storico
Proponiamo in vendita, in un meraviglioso stabile dei primi del novecento che conserva ancora portoni e porte originali, un luminosissimo trilocale con doppia esposizione. L'immobile, in cui è possibile ammirare la pavimentazione originale, è composto da zona giorno con cucina a vista, camera matrimoniale, una cameretta ed un bagno. Sito al primo ed ultimo piano dello stabile, l'immobile è immerso nella luce e nella tranquillità di una via poco trafficata, rimanendo pero vicinissimo a tutti i servizi principali, che sono raggiungibili a piedi. L'appartamento è un'ottima occasione per chi è amante delle palazzine d'epoca ma non vuole rinunciare alla comodità del centro di Fiumicino. . .. .. . . . . . . . . . .Proponiamo in vendita, in un meraviglioso stabile dei primi del novecento che conserva ancora portoni e porte originali, un luminosissimo trilocale con doppia esposizione. L'immobile, in cui è possibile ammirare la pavimentazione originale, è composto da zona giorno con cucina a vista, camera matrimoniale, una cameretta ed un bagno. Sito al primo ed ultimo piano dello stabile, l'immobile è immerso nella luce e nella tranquillità di una via poco trafficata, rimanendo pero vicinissimo a tutti i servizi principali, che sono raggiungibili a piedi. L'appartamento è un'ottima occasione per chi è amante delle palazzine d'epoca ma non vuole rinunciare alla comodità del centro di Fiumicino


