Valutazione immobiliare indipendente, accurata e gratuita
Appartamento in vendita a Fiumicino in zona Isola Sacra a 258.000 € (cod.650b2f1b)
Caasa non ha sufficienti informazioni per commentare l'appartamento a Fiumicino in zona Isola Sacra - 650b2f1b.
Analisi immobiliare
I dati in posseso di Caasa per quest'immobile sono insufficienti, inaffidabili o contraddittori per proporre un'analisi attendibile.
Mercato immobiliare a Fiumicino
Per quanto riguarda più in generale la città di Fiumicino, sono presenti al momento ben oltre mille annunci per
appartamenti in vendita (meno del 5% dell'intera provincia)
e il maggior numero di annunci per questa tipologia sono relativi proprio alla zona di Isola Sacra.
La richiesta media nella zona dove sorge l'appartamento (Isola Sacra) è pari a
2.830 €/m², molto vicina ai valori della zona Fregene che sono i più alti della città .
La dinamica dei prezzi in tutta la città mostra che negli ultimi 6 mesi, i prezzi per appartamenti in vendita sono
in forte aumento (+14,30%).
NOVITÀ Il risultato che vedi dipende dai dati che siamo riusciti ad estrarre dall'annuncio: ottieni una stima più accuranta di questo immobile, inserendo dati più precisi.
N.B. L'Opinione di Caasa® è un servizio sperimentale realizzato tramite tecniche di Intelligenza Artificiale, fornito senza alcuna garanzia di correttezza e completezza. Leggi il disclaimer o segnalaci un problema.
IMMAGINI
IN SINTESI
PROPOSTO DA:
AGENZIA GORI IMMOBILIARE SRL
DESCRIZIONE
di nuova costruzione con posto auto con terrazza con giardino con angolo cottura con balcone di recente costruzione di nuova costruzione con termocondizionamento con cantina
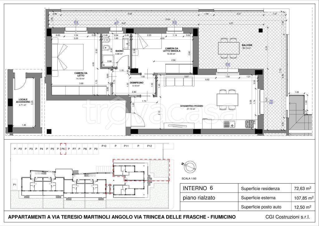
Scopri il piacere di vivere in un appartamento moderno e confortevole di circa 72 mq, situato al piano terra rialzato di una recente costruzione realizzata secondo elevati standard di qualità. La assicura un eccellente risparmio sui consumi grazie a […]
