Valutazione immobiliare indipendente, accurata e gratuita
Appartamento in vendita a Fiumicino in zona Isola Sacra a 195.000 € (cod.64c27927)
Caasa non ha sufficienti informazioni per commentare l'appartamento a Fiumicino in zona Isola Sacra - 64c27927.
Analisi immobiliare
I dati in posseso di Caasa per quest'immobile sono insufficienti, inaffidabili o contraddittori per proporre un'analisi attendibile.
Mercato immobiliare a Fiumicino
Per quanto riguarda più in generale la città di Fiumicino, sono presenti al momento ben oltre mille annunci per
appartamenti in vendita (meno del 5% dell'intera provincia)
e il maggior numero di annunci per questa tipologia sono relativi proprio alla zona di Isola Sacra.
La richiesta media nella zona dove sorge l'appartamento (Isola Sacra pressi Via della Scafa) è pari a
2.750 €/m², molto vicina ai valori della zona Fregene che sono i più alti della città .
La dinamica dei prezzi in tutta la città mostra che negli ultimi 6 mesi, i prezzi per appartamenti in vendita sono
in debole aumento (+1,83%).
NOVITÀ Il risultato che vedi dipende dai dati che siamo riusciti ad estrarre dall'annuncio: ottieni una stima più accuranta di questo immobile, inserendo dati più precisi.
N.B. L'Opinione di Caasa® è un servizio sperimentale realizzato tramite tecniche di Intelligenza Artificiale, fornito senza alcuna garanzia di correttezza e completezza. Leggi il disclaimer o segnalaci un problema.
IMMAGINI
IN SINTESI
PROPOSTO DA:
AGENZIA GORI IMMOBILIARE SRL
DESCRIZIONE
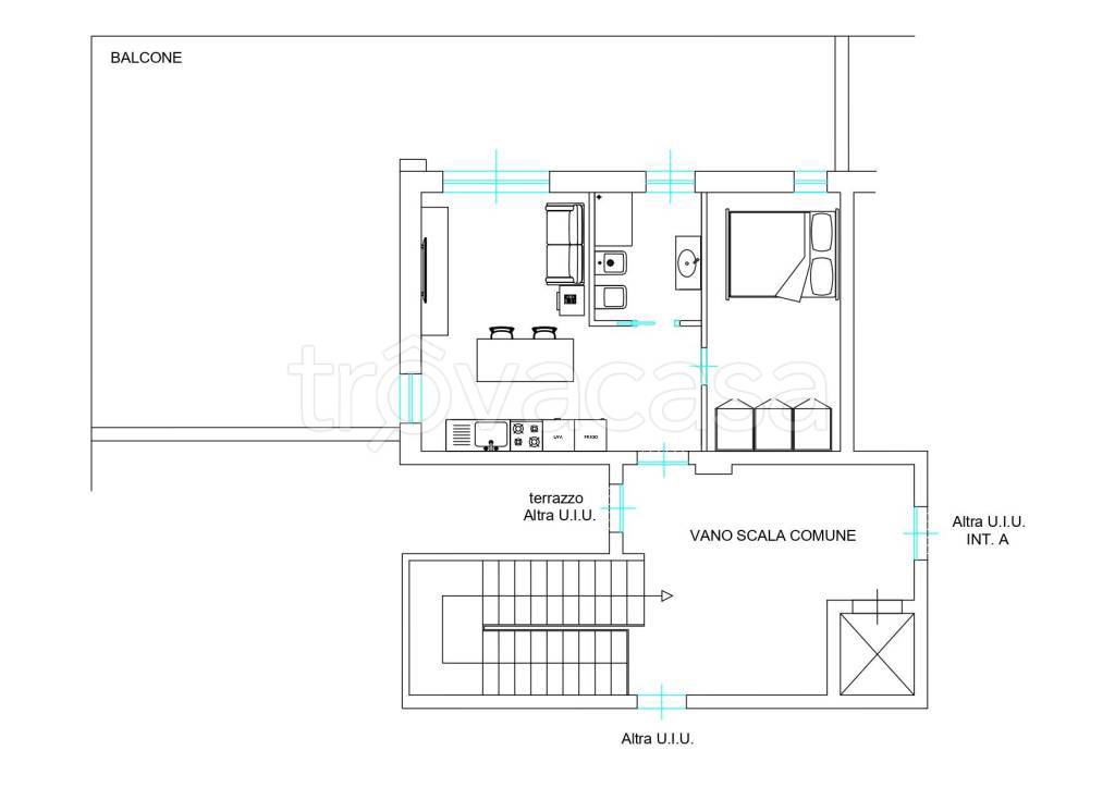
di nuova costruzione con posto auto con terrazza con angolo cottura di recente costruzione di nuova costruzione con ascensore
FIUMICINO – VENDESI ATTICI NUOVI CON AMPI TERRAZZI VISTA FIUME In palazzina nuovissima green proponiamo attici di circa 40 mq situati all’ultimo piano di una recente costruzione con ascensore Gli appartamenti sono composti da soggiorno con angolo cottura, camera, bagno e splendido terrazzo di circa 100 mq ideale per vivere gli spazi esterni. Possibilità di personalizzare la divisione interna degli ambienti. Completano la proprietà posto auto scoperto interno al condominio, impianto a pompa di calore caldo/freddo, pannelli fotovoltaici e Le immagini arredate sono render indicativi delle possibili soluzioni d’arredo. Dotazioni e Rifiniture – edificio green di nuova generazione Pannelli fotovoltaici per un elevato risparmio energetico Impianto a pompa di calore caldo/freddo Infissi ad alta efficienza termoacustica Rivestimenti interni in gres porcellanato di qualità Bagno finestrato o aerato con doccia e sanitari moderni Ampio terrazzo perimetrale di circa 100 mq, ideale per vivere all’aperto Ascensore di ultima generazione Posto auto scoperto interno al condominio Possibilità di personalizzare la divisione interna per ottimizzare gli spazi Esposizione: Attici dotati di splendida vista aperta sul Fiume, con un’esposizione che assicura ottima luminosità durante tutto l’arco della giornata. Grazie al grande terrazzo perimetrale, gli ambienti interni risultano ariosi e ben illuminati, offrendo una vivibilità superiore rispetto agli immobili tradizionali. Considerazioni Questi attici rappresentano una soluzione unica e moderna, ideale per chi desidera vivere all’ultimo piano di una palazzina recente, in classe energetica elevata e con un terrazzo che diventa un vero e proprio prolungamento della casa. La possibilità di personalizzare la suddivisione degli spazi interni li rende perfetti sia per giovani coppie, sia come investimento turistico o residenziale. La combinazione tra efficienza energetica, vista fiume, ampi spazi esterni e prezzo competitivo a partire da €195.000 rende questa proposta estremamente int[…]

