Valutazione immobiliare indipendente, accurata e gratuita
L'Opinione di Caasa® per l'appartamento in vendita a Colleferro a 285.000 € (cod.65920b63)
Secondo Caasa, per l'appartamento in vendita a Colleferro, la richiesta di 285.000 € è significativamente svantaggiosa rispetto agli annunci simili.
Analisi immobiliare
L'appartamento, situato vicino a Via Fontana dell'Oste nella zona OMI B1, è proposto in vendita a
285.000 € per una
superficie commerciale di
100 m² e quindi ad un prezzo per metro quadrato pari a
2850 €/m²
.
Tale valore
è decisamente superiore a quello stimato da Caasa per immobili in vendita simili per tipologia, caratteristiche, classe energetica e localizzati nella stessa zona OMI, che è compreso tra
2.011 €/m² e
2.204 €/m².
La conoscenza con buona approssimazione della localizzazione dell'immobile ha consentito di utilizzare come raffronto i dati medi elaborati esattamente nella zona OMI di appertenenza (CENTRO URBANO (PIAZZA ITALIA)). Inoltre, Caasa ha potuto affinare la stima anche con la conoscenza della classe energetica (A+) oltre che dello stato dell'immobile (di nuova costruzione) e di alcune caratteristiche significative come la presenza dell'ascensore, la disponibilità di una cantina o il posto auto. Per queste ragioni i valori accettabili per l'offerta costituiscono un intervallo abbastanza limitato.
Mercato immobiliare a Colleferro
Per quanto riguarda più in generale la città di Colleferro, sono presenti al momento più di 300 annunci per
appartamenti in vendita (meno dell'1% dell'intera provincia) .
La dinamica dei prezzi in tutta la città mostra che negli ultimi 6 mesi, i prezzi per appartamenti in vendita sono
in sostanziale aumento (+7,17%).
NOVITÀ Il risultato che vedi dipende dai dati che siamo riusciti ad estrarre dall'annuncio: ottieni una stima più accuranta di questo immobile, inserendo dati più precisi.
N.B. L'Opinione di Caasa® è un servizio sperimentale realizzato tramite tecniche di Intelligenza Artificiale, fornito senza alcuna garanzia di correttezza e completezza. Leggi il disclaimer o segnalaci un problema.
IMMAGINI
IN SINTESI
PROPOSTO DA:
Immobiliare Atena srls
DESCRIZIONE
di nuova costruzione con balcone con terrazza con posto auto con cantina di nuova costruzione con cucina abitabile con termocondizionamento con ascensore
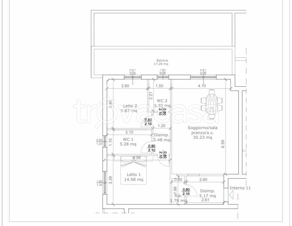
Appartamento terzo piano con ascensore, 2 camere da letto, 2 bagni e cucina abitabile. Compreso anche il box auto ed un ampio balcone. L'agenzia Immobiliare Atena propone in vendita questa splendida nuova costruzione, situata in una tranquilla zona residenziale. Questo appartamento al terzo piano, raggiungibile con l'ascensore, offre un soggiorno luminoso e accogliente, perfetto per momenti di relax e convivialità. La cucina moderna è ideale per gli amanti della gastronomia, mentre la camera principale con cabina armadio garantisce spazio e comfort. Cameretta e ripostiglio rendono questo appartamento perfetto per famiglie o per chi desidera uno studio. I due bagni, elegantemente arredati, offrono praticità e stile. Goditi l'ampio balcone, spazio ideale per rilassarsi al sole. Incluso nel prezzo un box auto, per una maggiore comodità. L'appartamento è dotato di riscaldamento a pavimento ed aria condizionata, garantendo un comfort ottimale in ogni stagione. Con una questo immobile è progettato per un consumo energetico ridotto, contribuendo a un ambiente più sostenibile. Non perdere l'opportunità di vivere in un contesto moderno e funzionale. Contattaci per maggiori informazioni e per prenotare una visita sul nostro sito www.immobiliareatena.it

