Valutazione immobiliare indipendente, accurata e gratuita
Appartamento in vendita a Colleferro a 285.000 € (cod.6542b9a1)
Caasa non ha sufficienti informazioni per commentare l'appartamento in vendita a Colleferro - 6542b9a1.
Analisi immobiliare
I dati in posseso di Caasa per quest'immobile sono insufficienti, inaffidabili o contraddittori per proporre un'analisi attendibile.
Mercato immobiliare a Colleferro
Per quanto riguarda più in generale la città di Colleferro, sono presenti al momento più di 300 annunci per
appartamenti in vendita (meno dell'1% dell'intera provincia)
e il maggior numero di annunci per questa tipologia sono relativi alla zona di Colleferro Scalo.
Relativamente alla dinamica dei prezzi, possiamo dire che negli ultimi 6 mesi i prezzi medi in tutta la città per appartamenti in vendita sono
sostanzialmente stabili (+1,14%).
NOVITÀ Il risultato che vedi dipende dai dati che siamo riusciti ad estrarre dall'annuncio: ottieni una stima più accuranta di questo immobile, inserendo dati più precisi.
N.B. L'Opinione di Caasa® è un servizio sperimentale realizzato tramite tecniche di Intelligenza Artificiale, fornito senza alcuna garanzia di correttezza e completezza. Leggi il disclaimer o segnalaci un problema.
IMMAGINI
IN SINTESI
PROPOSTO DA:
Immobiliare Atena srls
DESCRIZIONE
di nuova costruzione con balcone con terrazza con cantina con cucina abitabile con ascensore con termocondizionamento con riscaldamento autonomo
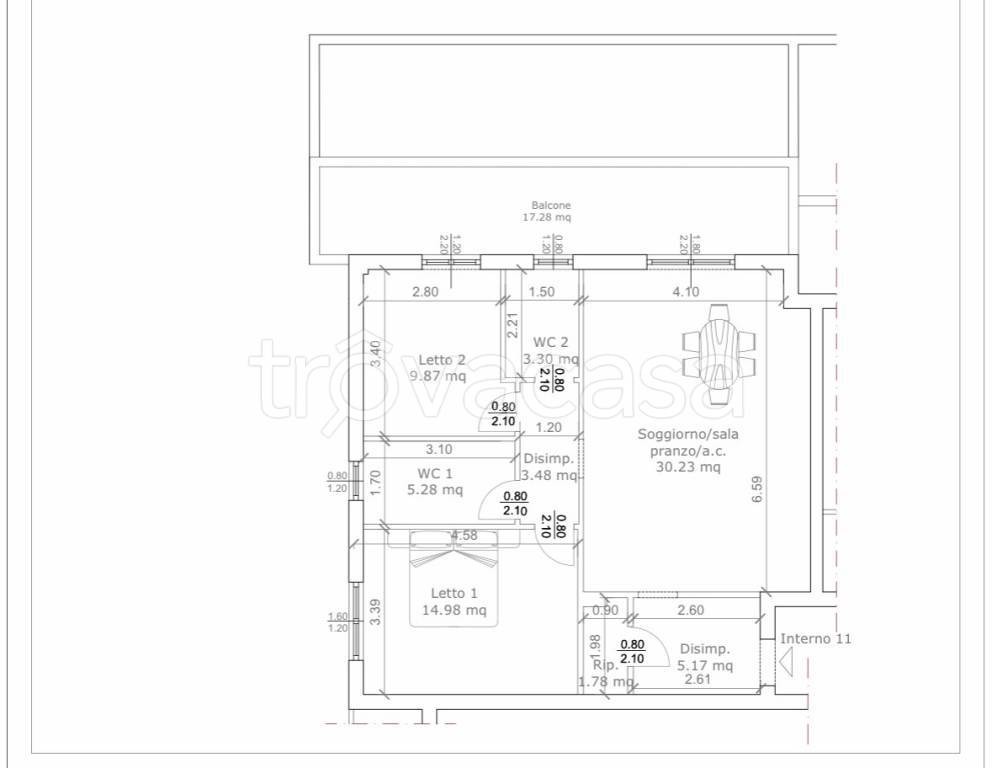
Appartamento terzo piano con ascensore, 2 camere da letto, 1 bagno e cucina abitabile. Compreso anche il box auto. Scopri il tuo nuovo rifugio in questa splendida nuova costruzione, situata in una tranquilla zona residenziale. Questo appartamento al terzo piano, raggiungibile con l'ascensore, offre un soggiorno luminoso e accogliente, perfetto per momenti di relax e convivialità. La cucina moderna è ideale per gli amanti della gastronomia, mentre la camera principale con cabina armadio garantisce spazio e comfort. Cameretta e ripostiglio rendono questo appartamento perfetto per famiglie o per chi desidera uno studio. I due bagni, elegantemente arredati, offrono praticità e stile. Goditi l'ampio terrazzo e il balcone, spazi ideali per cene all'aperto o semplicemente per rilassarsi al sole. Incluso nel prezzo un box auto, per una maggiore comodità. L'appartamento è dotato di riscaldamento autonomo e predisposizione dell'aria condizionata, garantendo un comfort ottimale in ogni stagione. Con una questo immobile è progettato per un consumo energetico ridotto, contribuendo a un ambiente più sostenibile. Non perdere l'opportunità di vivere in un contesto moderno e funzionale. Contattaci per maggiori informazioni e per prenotare una visita

