Valutazione immobiliare indipendente, accurata e gratuita
Appartamento in vendita a Colleferro a 54.675 € (cod.64f599af)
Caasa non ha sufficienti informazioni per commentare l'appartamento in vendita a Colleferro - 64f599af.
Analisi immobiliare
I dati in posseso di Caasa per quest'immobile sono insufficienti, inaffidabili o contraddittori per proporre un'analisi attendibile.
Mercato immobiliare a Colleferro
Per quanto riguarda più in generale la città di Colleferro, sono presenti al momento più di 300 annunci per
appartamenti in vendita (meno dell'1% dell'intera provincia)
e il maggior numero di annunci per questa tipologia sono relativi alla zona di Colleferro Scalo.
La dinamica dei prezzi in tutta la città mostra che negli ultimi 6 mesi, i prezzi per appartamenti in vendita sono
in forte aumento (+12,54%).
NOVITÀ Il risultato che vedi dipende dai dati che siamo riusciti ad estrarre dall'annuncio: ottieni una stima più accuranta di questo immobile, inserendo dati più precisi.
N.B. L'Opinione di Caasa® è un servizio sperimentale realizzato tramite tecniche di Intelligenza Artificiale, fornito senza alcuna garanzia di correttezza e completezza. Leggi il disclaimer o segnalaci un problema.
IMMAGINI
IN SINTESI
PROPOSTO DA:
Studio Giuliani Real Estate Srl
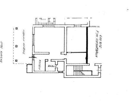
DESCRIZIONE
in asta giudiziaria con cantina con cucina abitabile con termocondizionamento con riscaldamento autonomo
CONTATTACI PER UNA CONSULENZA GRATUITA ALLO 06/87607612 Colleferro (RM) Via dei Larici, 15. Appartamento posto al piano terra, interno 1/A, composto da ingresso, cucina, camera, soggiorno, bagno, ripostiglio esterno e portico con annessa corte comune […]
