Valutazione immobiliare indipendente, accurata e gratuita
Terreno edificabile in vendita a Civitella San Paolo a 83.000 € (cod.653ff8d6)
Caasa non ha sufficienti informazioni per commentare il terreno edificabile a Civitella San Paolo - 653ff8d6.
Analisi immobiliare
I dati in posseso di Caasa per quest'immobile sono insufficienti, inaffidabili o contraddittori per proporre un'analisi attendibile.
Mercato immobiliare a Civitella San Paolo
Per quanto riguarda più in generale il comune di Civitella San Paolo, sono presenti al momento meno di dieci annunci per
terreni edificabili in vendita (meno dell'1% dell'intera provincia) .
Vedi altre informazioni direttamente su
Mercato-Immobiliare.info
NOVITÀ Il risultato che vedi dipende dai dati che siamo riusciti ad estrarre dall'annuncio: ottieni una stima più accuranta di questo immobile, inserendo dati più precisi.
N.B. L'Opinione di Caasa® è un servizio sperimentale realizzato tramite tecniche di Intelligenza Artificiale, fornito senza alcuna garanzia di correttezza e completezza. Leggi il disclaimer o segnalaci un problema.
IMMAGINI
IN SINTESI
DESCRIZIONE
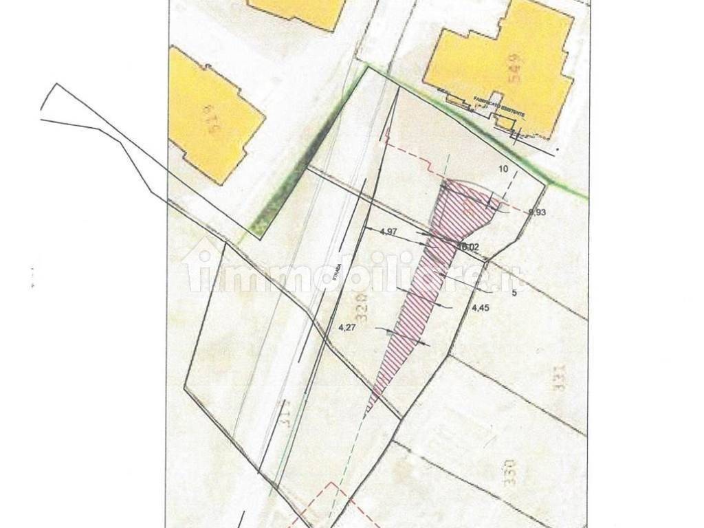
Civitella San Paolo Via Aldo Moro - Terreno Edificabile in Vendita nel Cuore del Paese! ** Scopri un'opportunità unica con questo terreno edificabile pianeggiante di 3.330 mq, situato in una posizione centrale e strategica. La superficie edificabile di 1.250 mc offre la possibilità di realizzare una palazzina di 3 piani, perfetta per chi desidera investire nel settore immobiliare. Con la possibilità di sviluppare fino a 8 unità residenziali, ciascuna di 60 mq, questo terreno rappresenta un'ottima soluzione per famiglie o giovani professionisti in cerca di un nuovo inizio. La vicinanza ai principali servizi rende questa area ancora più attraente, garantendo comodità e accessibilità. Il prezzo è di € 83.000, 00 trattabili, un affare da non perdere! Non lasciarti sfuggire questa occasione di investire nel futuro. Contattaci per maggiori informazioni e per organizzare una visita al terreno

