Valutazione immobiliare indipendente, accurata e gratuita
Appartamento in vendita a Ciampino a 252.000 € (cod.64b3bc36)
Caasa non ha sufficienti informazioni per commentare l'appartamento in vendita a Ciampino - 64b3bc36.
Analisi immobiliare
I dati in posseso di Caasa per quest'immobile sono insufficienti, inaffidabili o contraddittori per proporre un'analisi attendibile.
Mercato immobiliare a Ciampino
Per quanto riguarda più in generale la città di Ciampino, sono presenti al momento quasi 500 annunci per
appartamenti in vendita (meno dell'1% dell'intera provincia)
e il maggior numero di annunci per questa tipologia sono relativi alla zona di Acqua Sotterra.
Possiamo inoltre considerare che in tutta la città negli ultimi 6 mesi, i prezzi per appartamenti in vendita sono
in leggero aumento (+2,34%).
NOVITÀ Il risultato che vedi dipende dai dati che siamo riusciti ad estrarre dall'annuncio: ottieni una stima più accuranta di questo immobile, inserendo dati più precisi.
N.B. L'Opinione di Caasa® è un servizio sperimentale realizzato tramite tecniche di Intelligenza Artificiale, fornito senza alcuna garanzia di correttezza e completezza. Leggi il disclaimer o segnalaci un problema.
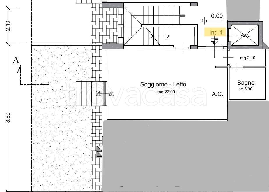
IMMAGINI
IN SINTESI
PROPOSTO DA:
GROSSI E GROSSI S.R.L.
DESCRIZIONE
di nuova costruzione con posto auto con terrazza con giardino con cantina con termocondizionamento di recente ristrutturazione di nuova costruzione con angolo cottura
CIAMPINO – APPARTAMENTI IN VILLA RISTRUTTURATI PARI AL NUOVO – località Acqua Acetosa e precisamente in Via dell’Acqua Acetosa 30, proponiamo in vendita splendidi appartamenti di varie metrature e tipologie per soddisfare al meglio le esigenze abitative degli acquirenti. Tutti gli appartamenti sono dotati di giardino e/o terrazzi di varie metrature e cantina. Ogni appartamento avrà a disposizione un’area urbana adibita al parcheggio di più auto. Possibilità di box auto. Gli appartamenti sono rifinitissimi, realizzati secondo le più moderne e innovative tecnologie per il risparmio energetico in classe A con l’installazione di pannelli fotovoltaici da 1,5 kW, impianto di riscaldamento a pavimento con pompa di calore. Trattandosi di immobili ad alto risparmio energetico, danno la possibilità all’acquirente di accedere al MUTUO GREEN, un mutuo a tasso agevolato. Nello specifico, questo appartamento di mq 90 circa, disposto su due livelli collegati da scala interna, è composto da: soggiorno con angolo cottura, 3 locali, doppi servizi e spazio esterno di mq 40 circa in parte mattonato in parte a verde. Completa la proprietà cantina e posti auto. La cura per i dettagli, la qualità dei materiali utilizzati, la presenza di tecnologie innovative offre all’acquirente la certezza di acquistare un immobile moderno e altamente funzionale. Il complesso residenziale, in fase di realizzazione, si trova immerso nel verde in una zona tranquilla, ma allo stesso tempo a due passi dalle principali arterie Via Anagnina, Via dei Laghi, Via Appia e dal G.R.A., facilitati anche gli spostamenti verso Roma attraverso la vicina stazione ferroviaria di Acqua Acetosa (linea Albano Laziale – Roma Termini). Nella zona è presente il prestigioso Liceo Scientifico Volterra, nelle vicinanze sono presenti le scuole materne ed elementari. Disponibilità di bilocali, trilocali, quadrilocali. Possibilità di personalizzazione. Consegna prevista febbraio 2026. PREZZI A PARTIRE DA € 158.000. Contattate i nostri uffici per maggiori informazioni sulle[…]


