Valutazione immobiliare indipendente, accurata e gratuita
Appartamento in vendita a Cerveteri in zona Cerenova a 150.000 € (cod.649660ef)
Caasa non ha sufficienti informazioni per commentare l'appartamento a Cerveteri in zona Cerenova - 649660ef.
Analisi immobiliare
I dati in posseso di Caasa per quest'immobile sono insufficienti, inaffidabili o contraddittori per proporre un'analisi attendibile.
Mercato immobiliare a Cerveteri
Per quanto riguarda più in generale la città di Cerveteri, sono presenti al momento oltre 500 annunci per
appartamenti in vendita (meno del 5% dell'intera provincia)
e il maggior numero di annunci per questa tipologia sono relativi alla zona di Marina di Cerveteri, ma anche la zona di Cerenova è molto attiva dal punto di vista immobiliare.
La richiesta media nella zona dove sorge l'appartamento (Cerenova pressi Via Amedeo Marconi) è pari a
2.145 €/m², molto vicina ai valori della zona Marina di Cerveteri che sono i più alti della città .
La dinamica dei prezzi in tutta la città mostra che negli ultimi 6 mesi, i prezzi per appartamenti in vendita sono
in debole diminuzione (-1,98%).
NOVITÀ Il risultato che vedi dipende dai dati che siamo riusciti ad estrarre dall'annuncio: ottieni una stima più accuranta di questo immobile, inserendo dati più precisi.
N.B. L'Opinione di Caasa® è un servizio sperimentale realizzato tramite tecniche di Intelligenza Artificiale, fornito senza alcuna garanzia di correttezza e completezza. Leggi il disclaimer o segnalaci un problema.
IMMAGINI
IN SINTESI
PROPOSTO DA:
Immobiliare Etrusc@ Cerveteri S.R.L.
DESCRIZIONE
di recente ristrutturazione con giardino con posto auto di recente ristrutturazione con caminetto con termocondizionamento con riscaldamento autonomo di nuova costruzione
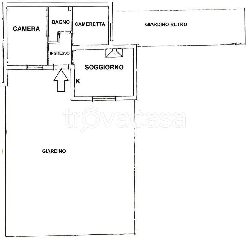
PIANO TERRA IN VILLINO con entrata indipendente e doppio giardino di 130 mq ca. totali. Ubicato in posizione strategica, consente un comodo accesso ai principali servizi, inclusi il centro commerciale Tyrsenia, la scuola materna e le vie di collegamento principali ( Via Fontana Morella – Via Settevene Palo ). L’appartamento è composto ingresso, luminoso soggiorno dotato di camino e cucina a vista, camera da letto, cameretta/studio versatile per le diverse esigenze (ideale come spazio di lavoro) e bagno. L’immobile è stato ristrutturato nel 2007 - impianto di riscaldamento autonomo a metano, oltre a inferiate blindate su tutte le portefinestre per garantire maggiore sicurezza. A completare la proprietà, il doppio giardino di 130 mq offre spazio ideale per momenti di relax all’aperto. Posto Auto scoperto. PER MAGGIORI INFO E VISITE CHIAMA ALLO 06.99.55.11.05 Dal 2009 CON VOI - FRIMM Etrusca CERVETERI LADISPOLI CERENOVA Marina S. Nicola VALCANNETO 06.99.55.11.05 / 331.94.54.110 www.immobiliaretrusca.it - https://www.facebook.com/frimm.cerveteri.cerenova.Ladispoli/ -- frimm cerveteri frimm ladispoli frimm cerenova campo di mare frimm valcanneto case appartamenti litorale agenzia agenzie appartamento cerveteri appartamento ladispoli cerreto miami palo laziale appartamento cerenova campo di mare appartamento marina di san nicola appartamento valcanneto appartamento roma casa cerveteri casa ladispoli casa cerenova campo di mare casa marina di san nicola casa valcanneto casa roma attico cerveteri attico ladispoli attico cerenova campo di mare attico marina di san nicola attico valcanneto attico roma villa cerveteri villa ladispoli cerreto miami villa cerenova villa marina di san nicola villa campo di mare villa valcanneto villa roma villino cerveteri villino ladispoli villino cerenova campo di mare villino marina di san nicola villino valcanneto villino roma monolocale cerveteri monolocale ladispoli monolocale cerenova monolocale marina di san nicola monolocale campo di mare monolocale valcanneto monolocale roma […]

