Valutazione immobiliare indipendente, accurata e gratuita
Appartamento in vendita ad Ardea a 65.025 € (cod.65974a45)
Caasa non ha sufficienti informazioni per commentare l'appartamento in vendita ad Ardea - 65974a45.
Analisi immobiliare
I dati in posseso di Caasa per quest'immobile sono insufficienti, inaffidabili o contraddittori per proporre un'analisi attendibile.
Mercato immobiliare ad Ardea
Per quanto riguarda più in generale la città di Ardea, sono presenti al momento ben oltre mille annunci per
appartamenti in vendita (meno del 5% dell'intera provincia)
e il maggior numero di annunci per questa tipologia sono relativi alla zona di Marina di Ardea.
Relativamente alla dinamica dei prezzi, possiamo dire che negli ultimi 6 mesi i prezzi medi in tutta la città per appartamenti in vendita sono
in aumento (+4,04%).
NOVITÀ Il risultato che vedi dipende dai dati che siamo riusciti ad estrarre dall'annuncio: ottieni una stima più accuranta di questo immobile, inserendo dati più precisi.
N.B. L'Opinione di Caasa® è un servizio sperimentale realizzato tramite tecniche di Intelligenza Artificiale, fornito senza alcuna garanzia di correttezza e completezza. Leggi il disclaimer o segnalaci un problema.
IMMAGINI
IN SINTESI
PROPOSTO DA:
Studio Giuliani Real Estate Srl
DESCRIZIONE
di recente costruzione con balcone in asta giudiziaria di recente costruzione con termocondizionamento con cucina abitabile con riscaldamento autonomo
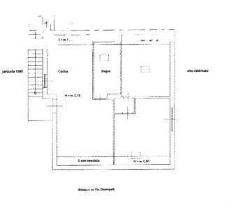
CONTATTACI PER UNA CONSULENZA GRATUITA ALLO 06/87607612 Ardea Via Nazzareno Strampelli, 26/F. Appartamento posto al piano primo, accessibile da scala esterna esclusiva, composto da ingresso-soggiorno, cucina, disimpegno, due camere da letto e bagno. Il tutto avente una superficie complessiva di mq 85,19. OFFERTA MINIMA: EURO 65.025,00 DATA DELL'ASTA: 05/05/2021 10:00 Casa è dove si trova il cuore. (âEUROPlinio il vecchioâEURO ) Con lo STUDIO GIULIANI REAL ESTATE il sogno diventa realtà ! Il nostro team di professionisti offre assistenza, consulenza legale e stragiudiziale per tutti i beni mobili e immobili in asta giudiziaria. I servizi offerti al nostro cliente sono molteplici: âEURO Ricerca dellâEUROimmobile con valutazione immobiliare âEURO Valutazione preliminare tecnica e studio della perizia con geometra in sede âEURO Valutazione economica con broker finanziario in sede con possibilità di mutuo fino al 100% del prezzo di aggiudicazione âEURO Prenotazione visita degli immobili oggetto di interesse tramite il custode giudiziario âEURO Partecipazione in asta, il cliente verrà seguito fino alla consegna delle chiavi âEURO Effettuiamo inoltre pratiche di saldo e stralcio e di acquisto del credito dai maggiori istituti bancari. âEURO La nostra parcella è dovuta solo in caso di aggiudicazione. âEURO Il nostro team è a vostra completa disposizione per fornirvi tutte le informazioni e per fissare un appuntamento per una consulenza gratuita presso le nostre sedi di Velletri e Nettuno. I dati inerenti l'immobile ed il materiale fotografico contenuti nel presente annuncio verranno confermati in sede di consulenza con la documentazione aggiornata disponibile. Puoi consultare tutti gli immobili disponibili in aggiornamento quotidiano sul nostro sito www.dominioaste.it o sulla nostra applicazione mobile gratuita DOMINIOASTE. Studio Giuliani Real Estate Velletri Via Eduardo De Filippo 2b Nettuno Via Santa Maria 4 Telefono 06/87607612 Cell 3519048182 Mail info.slg@dominioaste.it Seguici Su Facebook! 175 kWh/m2 a


