Valutazione immobiliare indipendente, accurata e gratuita
Appartamento in vendita ad Ardea a 79.500 € (cod.65973ec4)
Caasa non ha sufficienti informazioni per commentare l'appartamento in vendita ad Ardea - 65973ec4.
Analisi immobiliare
I dati in posseso di Caasa per quest'immobile sono insufficienti, inaffidabili o contraddittori per proporre un'analisi attendibile.
Mercato immobiliare ad Ardea
Per quanto riguarda più in generale la città di Ardea, sono presenti al momento ben oltre mille annunci per
appartamenti in vendita (meno del 5% dell'intera provincia)
e il maggior numero di annunci per questa tipologia sono relativi alla zona di Marina di Ardea.
Per quanto riguarda la dinamica dei prezzi, negli ultimi 6 mesi i prezzi medi in tutta la città per appartamenti in vendita sono
in aumento (+4,04%).
NOVITÀ Il risultato che vedi dipende dai dati che siamo riusciti ad estrarre dall'annuncio: ottieni una stima più accuranta di questo immobile, inserendo dati più precisi.
N.B. L'Opinione di Caasa® è un servizio sperimentale realizzato tramite tecniche di Intelligenza Artificiale, fornito senza alcuna garanzia di correttezza e completezza. Leggi il disclaimer o segnalaci un problema.
IMMAGINI
IN SINTESI
DESCRIZIONE
di recente costruzione con giardino con terrazza con posto auto con balcone in asta giudiziaria con cantina di recente costruzione con termocondizionamento con cucina abitabile con riscaldamento autonomo
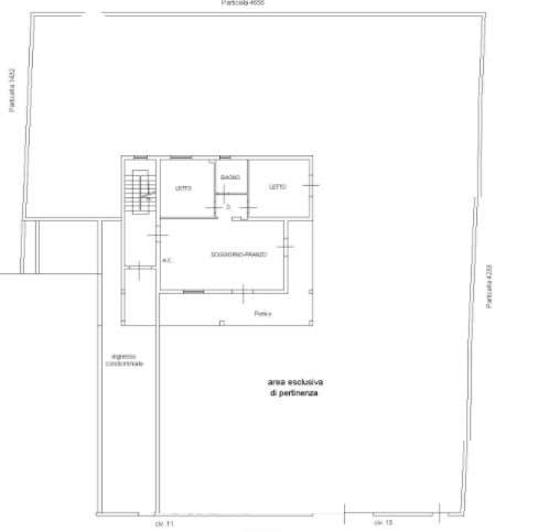
CONTATTACI PER UNA CONSULENZA GRATUITA ALLO 06/87607612 Ardea (RM) Via Bracciano n. 11/13. Appartamento sito al piano primo, composto da soggiorno, cucina, due camere, bagno, terrazzo a livello, oltre locale soffitta, cantina e posto auto. Il tutto avente una superficie complessiva di mq 72,50 per l'abitazione, oltre mq 24,90 per la soffitta e 25 mq per cantina e terrazzo. OFFERTA MINIMA: EURO 105.525,00 DATA DELL'ASTA: 18/06/2021 ore 10:30 Terracina (LT) via Badino km 3.800. Appartamento a destinazione residenziale ubicato al piano rialzato, della superficie catastale di mq 91. L'immobile è composto da ingresso, cucina, soggiorno, due camere, bagno, disimpegno e due balconi. OFFERTA MINIMA: EURO 79.500,00 DATA DELL'ASTA: 08/06/2023 10:30 Casa è dove si trova il cuore. (Plinio il vecchio) Con lo STUDIO GIULIANI REAL ESTATE il sogno diventa realtà! Il nostro team di professionisti offre assistenza, consulenza legale e stragiudiziale per tutti gli immobili in asta giudiziaria e libero mercato. I servizi offerti al nostro cliente sono molteplici: - Ricerca dell'immobile con valutazione immobiliare - Valutazione preliminare tecnica e studio della perizia con geometra in sede; - Valutazione economica con broker finanziario in sede con possibilità di mutuo fino al 100% del prezzo di aggiudicazione; - Prenotazione visita degli immobili oggetto di interesse tramite il custode giudiziario; - Partecipazione in asta, il cliente verrà seguito fino alla consegna delle chiavi; - Effettuiamo inoltre pratiche di saldo e stralcio e di acquisto del credito dai maggiori istituti bancari. - La nostra parcella è dovuta solo in caso di aggiudicazione. - Il nostro team è a vostra completa disposizione per fornirvi tutte le informazioni e per fissare un appuntamento per una consulenza gratuita. I dati inerenti l'immobile ed il materiale fotografico contenuti nel presente annuncio verranno confermati in sede di consulenza. Puoi consultare tutti gli immobili disponibili in aggiornamento quotidiano sul nostro sito. 175 kWh/m2 a

