Valutazione immobiliare indipendente, accurata e gratuita
Casa indipendente in vendita ad Ardea a 87.750 € (cod.65253da4)
Caasa non ha sufficienti informazioni per commentare la casa indipendente in vendita ad Ardea - 65253da4.
Analisi immobiliare
I dati in posseso di Caasa per quest'immobile sono insufficienti, inaffidabili o contraddittori per proporre un'analisi attendibile.
Mercato immobiliare ad Ardea
Per quanto riguarda più in generale la città di Ardea, sono presenti al momento ben oltre mille annunci per
case indipendenti in vendita (meno del 5% dell'intera provincia)
e il maggior numero di annunci per questa tipologia sono relativi alla zona di Nuova Florida.
Per quanto riguarda la dinamica dei prezzi, negli ultimi 6 mesi i prezzi medi in tutta la città per case indipendenti in vendita sono
in forte aumento (+11,95%).
NOVITÀ Il risultato che vedi dipende dai dati che siamo riusciti ad estrarre dall'annuncio: ottieni una stima più accuranta di questo immobile, inserendo dati più precisi.
N.B. L'Opinione di Caasa® è un servizio sperimentale realizzato tramite tecniche di Intelligenza Artificiale, fornito senza alcuna garanzia di correttezza e completezza. Leggi il disclaimer o segnalaci un problema.
IMMAGINI
IN SINTESI
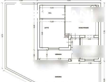
DESCRIZIONE
di nuova costruzione con giardino con posto auto in asta giudiziaria di nuova costruzione
POSSIBILITA' DI ASSISTENZA PER TUTTI GLI IMMOBILI IN ASTA, ANCHE QUELLI NON PUBBLICATI DAL NOSTRO STUDIO. Ardea Via della Cinciarella, 27. Intera proprietà di porzione di villino quadrifamiliare sito nel Comune di Ardea (RM) località Tor San Lorenzo, […]
