Valutazione immobiliare indipendente, accurata e gratuita
Casa indipendente in vendita ad Ardea in zona Colle Romito a 80.550 € (cod.64f5982a)
Caasa non ha sufficienti informazioni per commentare la casa indipendente ad Ardea in zona Colle Romito - 64f5982a.
Analisi immobiliare
I dati in posseso di Caasa per quest'immobile sono insufficienti, inaffidabili o contraddittori per proporre un'analisi attendibile.
Mercato immobiliare ad Ardea
Per quanto riguarda più in generale la città di Ardea, sono presenti al momento ben oltre mille annunci per
case indipendenti in vendita (meno del 5% dell'intera provincia)
e il maggior numero di annunci per questa tipologia sono relativi alla zona di Marina di Ardea, mentre nella zona di Colle Romito è presente un numero significativamente inferiore di annunci.
La richiesta media nella zona dove sorge la casa indipendente (Colle Romito pressi Via dello Scorpione) è pari a
1.715 €/m², molto vicina ai valori della zona Lido dei Pini che sono i più alti della città .
Possiamo inoltre considerare che in tutta la città negli ultimi 6 mesi, i prezzi per case indipendenti in vendita sono
in forte aumento (+11,95%).
NOVITÀ Il risultato che vedi dipende dai dati che siamo riusciti ad estrarre dall'annuncio: ottieni una stima più accuranta di questo immobile, inserendo dati più precisi.
N.B. L'Opinione di Caasa® è un servizio sperimentale realizzato tramite tecniche di Intelligenza Artificiale, fornito senza alcuna garanzia di correttezza e completezza. Leggi il disclaimer o segnalaci un problema.
IMMAGINI
IN SINTESI
PROPOSTO DA:
Studio Giuliani Real Estate Srl
DESCRIZIONE
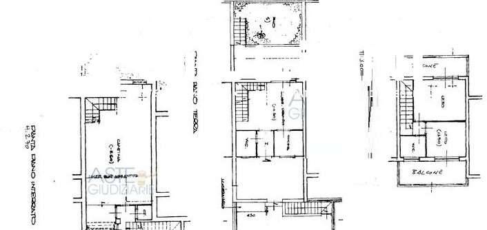
con posto auto con balcone in asta giudiziaria con cantina con termocondizionamento con cucina abitabile con riscaldamento autonomo
CONTATTACI PER UNA CONSULENZA GRATUITA ALLO 06/87607612 Ardea (RM) Via dello Scorpione, 12. Porzione di villino ad uso abitativo ai piani terra e primo con annessa cantina al piano seminterrato oltre posto auto al piano terra. L'immobile è composto d […]
